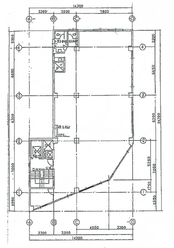
井門西新宿ビル 4階 69.78坪
賃貸情報
※当サイトの表記はすべて税抜きとなり、消費税が別途加算されます。
- 賃料
- 2,442,300 円
(坪:35,000 円)
- 面積
- 69.78坪 (230.68㎡)
- 共益/管理費
- 共益費無
- 敷金/保証金
- 12ヶ月
- 更新料
- 新賃料1ヶ月
- 礼金/償却
- 1ヶ月 / 無
- 住所
- 東京都新宿区西新宿1丁目16-4
- 構造
- RC / 地上8階・地下2階
- 規模
- -地上8階 ・ 地下2階
- 主な用途
- -
- 竣工
- 1964年6月
- 契約形態
- -
- 入居可能日
- -
- 天井高
- エレベータ
- 1基
- 駐車場
- -
- 基準階坪数
- -
その他条件
| 償却 | 無 |
|---|---|
| 更新料 | 新賃料1ヶ月 |
| その他の費用 |
物件情報
| 空室 | あり |
|---|---|
| 物件名 | 井門西新宿ビル |
| 住所 | 東京都新宿区西新宿1丁目16-4 |
| 構造 | RC / 地上8階・地下2階 |
| 竣工 | 1964年6月 |
| 耐震基準 | - |
設備詳細
| 空調 | 個別空調 |
|---|---|
| トイレ | - |
| 床仕様 | - |
| エレベータ | 1 基 |
| 駐車場設備 | - |
| その他 | スケルトン / 店舗可/飲食可 / 店舗可/飲食不可 / クリニック全般 / 24時間利用可 |
最寄り駅
| 最寄り駅 | 新宿 徒歩3分 新宿 徒歩2分 新宿 徒歩1分 |
|---|
アクセスマップ
ストリートビュー




















