現在この物件は埋まっています
ニュー早稲田ビル 4階 18.45坪
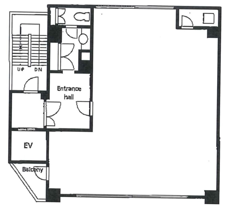
図面
賃貸情報
※当サイトの表記はすべて税抜きとなり、消費税が別途加算されます。
- 賃料
- 相談
- 面積
- 18.45坪 (61㎡)
- 共益/管理費
- 共益費相談
- 敷金/保証金
- 相談
- 更新料
- 無
- 礼金/償却
- 相談 / 無
- 住所
- 東京都新宿区早稲田町12-5
- 構造
- SRC / 地上7階
- 規模
- -地上7階
- 主な用途
- -
- 竣工
- 1990年2月
- 契約形態
- -
- 入居可能日
- -
- 天井高
- エレベータ
- 1基
- 駐車場
- -
- 基準階坪数
- -
その他条件
| 償却 | 無 |
|---|---|
| 更新料 | 無 |
| その他の費用 |
物件情報
| 空室 | - |
|---|---|
| 物件名 | ニュー早稲田ビル |
| 住所 | 東京都新宿区早稲田町12-5 |
| 構造 | SRC / 地上7階 |
| 竣工 | 1990年2月 |
| 耐震基準 | 耐震基準クリア |
| 基準階坪数 | 21.21坪 |
設備詳細
| 空調 | - |
|---|---|
| トイレ | - |
| 床仕様 | - |
| エレベータ | 1 基 |
| 駐車場設備 | - |
| その他 | 新耐震 / エレベータ有 |
最寄り駅
| 最寄り駅 | 早稲田 徒歩1分 牛込柳町 徒歩9分 若松河田 徒歩10分 |
|---|
アクセスマップ
ストリートビュー





































