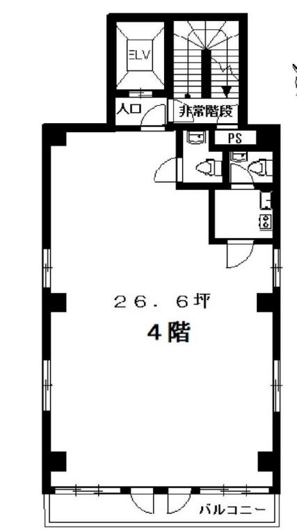
中村屋ビル 4階 26.6坪
賃貸情報
※当サイトの表記はすべて税抜きとなり、消費税が別途加算されます。
- 賃料
- 350,000 円
(坪:13,157 円)
- 面積
- 26.6坪 (87.93㎡)
- 共益/管理費
- 共益費無
- 敷金/保証金
- 5.15ヶ月
- 更新料
- 新賃料1ヶ月
- 礼金/償却
- 無 / 20%
- 住所
- 東京都品川区西五反田8丁目1-8
- 構造
- SRC / 地上12階
- 規模
- 地上12階
- 主な用途
- -
- 竣工
- 1981年1月
- 契約形態
- -
- 入居可能日
- 即時
- 天井高
- エレベータ
- 1基
- 駐車場
- -
- 基準階坪数
- -
その他条件
| 償却 | 20% |
|---|---|
| 更新料 | 新賃料1ヶ月 |
| その他の費用 |
物件情報
| 空室 | あり |
|---|---|
| 物件名 | 中村屋ビル |
| 住所 | 東京都品川区西五反田8丁目1-8 |
| 構造 | SRC / 地上12階 |
| 竣工 | 1981年1月 |
| 耐震基準 | - |
設備詳細
| 空調 | 個別空調 |
|---|---|
| トイレ | 男女別トイレ室内 / 男女別トイレ室外 |
| 床仕様 | - |
| エレベータ | 1 基 |
| 駐車場設備 | - |
| その他 | 光ファイバー |
最寄り駅
| 最寄り駅 | 五反田 徒歩5分 五反田 徒歩4分 大崎広小路 徒歩2分 |
|---|
アクセスマップ
ストリートビュー


































