現在この物件は埋まっています
第1三州ビル 2階 27.46坪
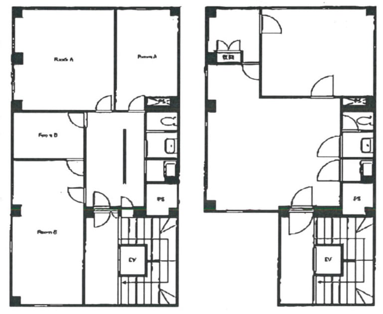
図面
賃貸情報
※当サイトの表記はすべて税抜きとなり、消費税が別途加算されます。
- 賃料
- 相談
- 面積
- 27.46坪 (90.78㎡)
- 共益/管理費
- 管理費20,000 円
- 敷金/保証金
- 3ヶ月
- 更新料
- 無
- 礼金/償却
- 無 / 無
- 住所
- 東京都港区赤坂3丁目18-2
- 構造
- RC / 地上5階・地下1階
- 規模
- -地上5階 ・ 地下1階
- 主な用途
- -
- 竣工
- 1970年12月
- 契約形態
- -
- 入居可能日
- 即時
- 天井高
- エレベータ
- 1基
- 駐車場
- -
- 基準階坪数
- -
その他条件
| 償却 | 無 |
|---|---|
| 更新料 | 無 |
| その他の費用 |
物件情報
| 空室 | - |
|---|---|
| 物件名 | 第1三州ビル |
| 住所 | 東京都港区赤坂3丁目18-2 |
| 構造 | RC / 地上5階・地下1階 |
| 竣工 | 1970年12月 |
| 耐震基準 | - |
設備詳細
| 空調 | - |
|---|---|
| トイレ | - |
| 床仕様 | - |
| エレベータ | 1 基 |
| 駐車場設備 | - |
| その他 | - |
最寄り駅
| 最寄り駅 | 赤坂見附 徒歩2分 赤坂 徒歩4分 永田町 徒歩5分 |
|---|
アクセスマップ
ストリートビュー















































































































