日石横浜ビル 8階 465.42坪
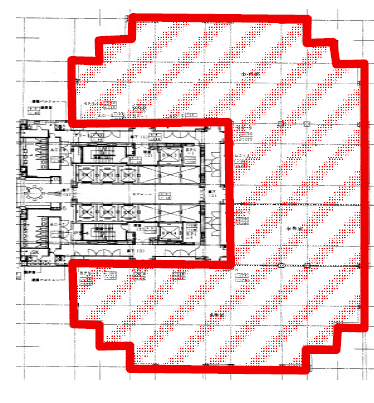
図面
賃貸情報
※当サイトの表記はすべて税抜きとなり、消費税が別途加算されます。
- 賃料
- 相談
- 面積
- 465.42坪 (1538.58㎡)
- 共益/管理費
- 共益費賃料込
- 敷金/保証金
- 相談
- 更新料
- 無
- 礼金/償却
- 無 / 無
- 住所
- 神奈川県横浜市 中区桜木町1丁目1-8
- 構造
- SRC / 地上30階・地下2階
- 規模
- -地上30階 ・ 地下2階
- 主な用途
- -
- 竣工
- 1997年6月
- 契約形態
- -
- 入居可能日
- 予定 2026年 1月 上旬
- 天井高
- 2.7m
- エレベータ
- 17基
- 駐車場
- 空有
- 基準階坪数
- -
その他条件
| 償却 | 無 |
|---|---|
| 更新料 | 無 |
| その他の費用 |
物件情報
| 空室 | あり |
|---|---|
| 物件名 | 日石横浜ビル |
| 住所 | 神奈川県横浜市 中区桜木町1丁目1-8 |
| 構造 | SRC / 地上30階・地下2階 |
| 竣工 | 1997年6月 |
| 耐震基準 | 耐震基準クリア |
| 基準階坪数 | 465.43坪 |
設備詳細
| 空調 | セントラル空調 |
|---|---|
| トイレ | - |
| 床仕様 | OA有(フリーアクセスフロア) |
| エレベータ | 17 基 |
| 駐車場設備 | 空有 |
| その他 | 店舗可/飲食不可 / フリーレント / 新耐震 / 光ファイバー / 高層ビル / 大型ビル |
最寄り駅
| 最寄り駅 | 桜木町 徒歩4分 桜木町 徒歩3分 みなとみらい 徒歩6分 |
|---|
アクセスマップ
ストリートビュー




