現在この物件は埋まっています
ランザン5ビル 5階 22.16坪
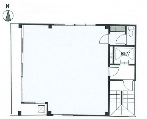
図面
賃貸情報
※当サイトの表記はすべて税抜きとなり、消費税が別途加算されます。
- 賃料
- 相談
- 面積
- 22.16坪 (73.26㎡)
- 共益/管理費
- 共益費無
- 敷金/保証金
- 4ヶ月
- 更新料
- 新賃料1ヶ月
- 礼金/償却
- 2ヶ月 / 無
- 住所
- 東京都新宿区新宿5丁目7-8
- 構造
- RC / 地上7階
- 規模
- -地上7階
- 主な用途
- -
- 竣工
- 1984年3月
- 契約形態
- -
- 入居可能日
- 即時
- 天井高
- エレベータ
- 1基
- 駐車場
- -
- 基準階坪数
- -
その他条件
| 償却 | 無 |
|---|---|
| 更新料 | 新賃料1ヶ月 |
| 水道代 | 2,000円 |
物件情報
| 空室 | あり |
|---|---|
| 物件名 | ランザン5ビル |
| 住所 | 東京都新宿区新宿5丁目7-8 |
| 構造 | RC / 地上7階 |
| 竣工 | 1984年3月 |
| 耐震基準 | 耐震基準クリア |
設備詳細
| 空調 | 個別空調 |
|---|---|
| トイレ | - |
| 床仕様 | - |
| エレベータ | 1 基 |
| 駐車場設備 | - |
| その他 | 新耐震 / 光ファイバー / 機械警備 |
最寄り駅
| 最寄り駅 | 新宿三丁目 徒歩4分 新宿御苑前 徒歩6分 東新宿 徒歩8分 |
|---|
アクセスマップ
ストリートビュー
















































































