平生ビルディング 5階 24.87坪
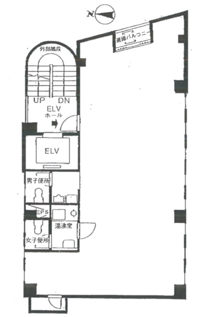
図面
賃貸情報
※当サイトの表記はすべて税抜きとなり、消費税が別途加算されます。
- 賃料
- 482,000 円
(坪:19,380 円)
- 面積
- 24.87坪 (82.21㎡)
- 共益/管理費
- 管理費50,000 円
- 敷金/保証金
- 7.89ヶ月
- 更新料
- 無
- 礼金/償却
- 2.08ヶ月 / 20%
- 住所
- 東京都新宿区新宿3丁目8-9
- 構造
- 鉄骨造 / 地上10階・地下1階
- 規模
- -地上10階 ・ 地下1階
- 主な用途
- -
- 竣工
- 1986年3月
- 契約形態
- -
- 入居可能日
- 即時
- 天井高
- エレベータ
- 1基
- 駐車場
- -
- 基準階坪数
- -
その他条件
| 償却 | 20% |
|---|---|
| 更新料 | 無 |
| その他の費用 |
物件情報
| 空室 | あり |
|---|---|
| 物件名 | 平生ビルディング |
| 住所 | 東京都新宿区新宿3丁目8-9 |
| 構造 | 鉄骨造 / 地上10階・地下1階 |
| 竣工 | 1986年3月 |
| 耐震基準 | 耐震基準クリア |
設備詳細
| 空調 | 個別空調 |
|---|---|
| トイレ | 男女別トイレ室内 / 男女別トイレ室外 |
| 床仕様 | - |
| エレベータ | 1 基 |
| 駐車場設備 | - |
| その他 | クリニック全般 / 新耐震 / 光ファイバー / 機械警備 / 24時間利用可 |
最寄り駅
| 最寄り駅 | 新宿三丁目 徒歩1分 新宿御苑前 徒歩5分 新宿 徒歩7分 |
|---|
アクセスマップ
ストリートビュー












































































