現在この物件は埋まっています
中町2丁目貸店舗ビル 2階 81.95坪
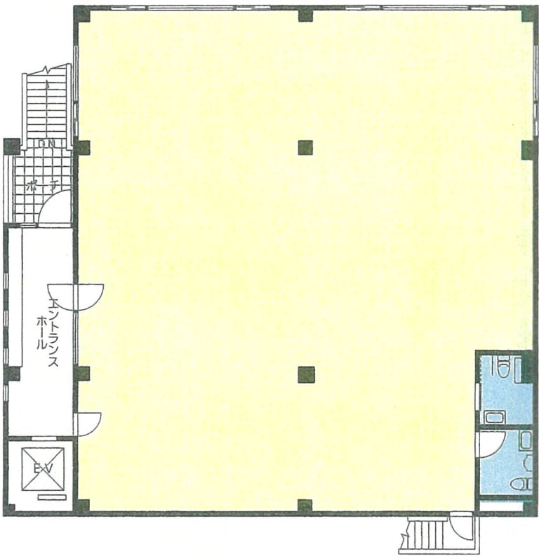
図面
賃貸情報
※当サイトの表記はすべて税抜きとなり、消費税が別途加算されます。
- 賃料
- 相談
- 面積
- 81.95坪 (270.94㎡)
- 共益/管理費
- 共益費無
- 敷金/保証金
- 8ヶ月
- 更新料
- 新賃料1ヶ月
- 礼金/償却
- 1ヶ月 / 10%
- 住所
- 東京都町田市中町2丁目6-5
- 構造
- 鉄骨造 / 地上2階
- 規模
- 地上2階
- 主な用途
- -
- 竣工
- 2018年2月
- 契約形態
- -
- 入居可能日
- -
- 天井高
- エレベータ
- -
- 駐車場
- 空有
- 基準階坪数
- -
その他条件
| 償却 | 10% |
|---|---|
| 更新料 | 新賃料1ヶ月 |
| その他の費用 |
物件情報
| 空室 | - |
|---|---|
| 物件名 | 中町2丁目貸店舗ビル |
| 住所 | 東京都町田市中町2丁目6-5 |
| 構造 | 鉄骨造 / 地上2階 |
| 竣工 | 2018年2月 |
| 耐震基準 | - |
設備詳細
| 空調 | - |
|---|---|
| トイレ | - |
| 床仕様 | - |
| エレベータ | - |
| 駐車場設備 | 空有 |
| その他 | - |
最寄り駅
| 最寄り駅 | 町田 徒歩13分 町田 徒歩16分 |
|---|
アクセスマップ
ストリートビュー





