ESPERNZA HATSUDAIビル 3階 10.5坪
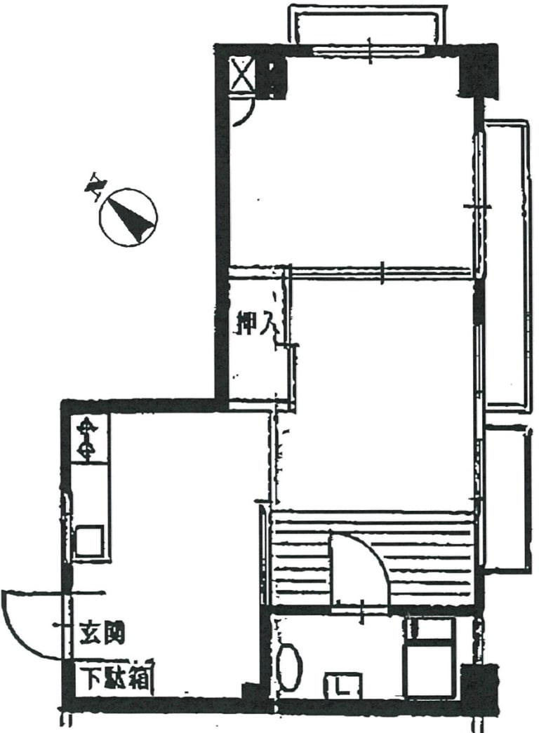
図面
賃貸情報
※当サイトの表記はすべて税抜きとなり、消費税が別途加算されます。
- 賃料
- 122,000 円
(坪:11,619 円)
- 面積
- 10.5坪 (34.71㎡)
- 共益/管理費
- 共益費7,000 円
- 敷金/保証金
- 2ヶ月
- 更新料
- 新賃料1ヶ月
- 礼金/償却
- 1ヶ月 / 無
- 住所
- 東京都渋谷区本町1丁目5-7
- 構造
- RC / 地上5階・地下1階
- 規模
- -地上5階 ・ 地下1階
- 主な用途
- -
- 竣工
- 1969年6月
- 契約形態
- -
- 入居可能日
- 予定 2026年 5月 上旬
- 天井高
- エレベータ
- -
- 駐車場
- -
- 基準階坪数
- -
その他条件
| 償却 | 無 |
|---|---|
| 更新料 | 新賃料1ヶ月 |
| その他の費用 |
物件情報
| 空室 | あり |
|---|---|
| 物件名 | ESPERNZA HATSUDAIビル |
| 住所 | 東京都渋谷区本町1丁目5-7 |
| 構造 | RC / 地上5階・地下1階 |
| 竣工 | 1969年6月 |
| 耐震基準 | - |
設備詳細
| 空調 | - |
|---|---|
| トイレ | - |
| 床仕様 | - |
| エレベータ | - |
| 駐車場設備 | - |
| その他 | SOHO可 / マンション |
最寄り駅
| 最寄り駅 | 初台 徒歩3分 笹塚 徒歩5分 幡ヶ谷 徒歩9分 |
|---|
アクセスマップ
ストリートビュー


































