現在この物件は埋まっています
シャリオビル 1階 54.99坪
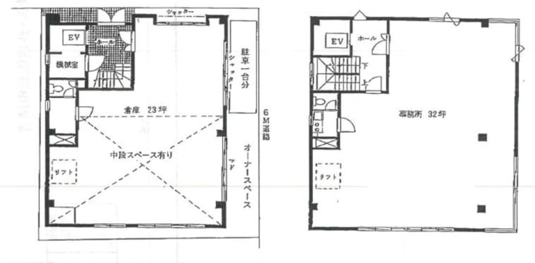
図面
賃貸情報
※当サイトの表記はすべて税抜きとなり、消費税が別途加算されます。
- 賃料
- 相談
- 面積
- 54.99坪 (181.8㎡)
- 共益/管理費
- 管理費10,000 円
- 敷金/保証金
- 2,021,250 円
- 更新料
- 無
- 礼金/償却
- 1ヶ月 / 2ヶ月
- 住所
- 東京都江東区海辺3-7
- 構造
- 鉄骨造 / 地上4階
- 規模
- -地上4階
- 主な用途
- -
- 竣工
- 1990年1月
- 契約形態
- -
- 入居可能日
- 即時
- 天井高
- 4.6m
- エレベータ
- -
- 駐車場
- 空有
- 基準階坪数
- -
その他条件
| 償却 | 2ヶ月 |
|---|---|
| 更新料 | 無 |
| その他の費用 |
物件情報
| 空室 | - |
|---|---|
| 物件名 | シャリオビル |
| 住所 | 東京都江東区海辺3-7 |
| 構造 | 鉄骨造 / 地上4階 |
| 竣工 | 1990年1月 |
| 耐震基準 | 耐震基準クリア |
設備詳細
| 空調 | - |
|---|---|
| トイレ | - |
| 床仕様 | - |
| エレベータ | - |
| 駐車場設備 | 空有 |
| その他 | 新耐震 |
最寄り駅
| 最寄り駅 | 住吉 徒歩11分 住吉 徒歩13分 西大島 徒歩15分 |
|---|
アクセスマップ
ストリートビュー














