現在この物件は埋まっています
ハウス神宮前ビル 1階 15.68坪
賃貸情報
※当サイトの表記はすべて税抜きとなり、消費税が別途加算されます。
- 賃料
- 相談
- 面積
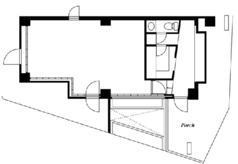
- 15.68坪 (51.83㎡)
- 共益/管理費
- 共益費賃料込
- 敷金/保証金
- 6ヶ月
- 更新料
- 新賃料1ヶ月
- 礼金/償却
- 1ヶ月 / 無
- 住所
- 東京都渋谷区神宮前2丁目27-3
- 構造
- 地上3階・地下1階
- 規模
- -地上3階 ・ 地下1階
- 主な用途
- -
- 竣工
- 1985年8月
- 契約形態
- -
- 入居可能日
- 即時
- 天井高
- エレベータ
- -
- 駐車場
- -
- 基準階坪数
- -
その他条件
| 償却 | 無 |
|---|---|
| 更新料 | 新賃料1ヶ月 |
| その他の費用 |
物件情報
| 空室 | - |
|---|---|
| 物件名 | ハウス神宮前ビル |
| 住所 | 東京都渋谷区神宮前2丁目27-3 |
| 構造 | 地上3階・地下1階 |
| 竣工 | 1985年8月 |
| 耐震基準 | 耐震基準クリア |
設備詳細
| 空調 | - |
|---|---|
| トイレ | - |
| 床仕様 | - |
| エレベータ | - |
| 駐車場設備 | - |
| その他 | 新耐震 |
最寄り駅
| 最寄り駅 | 北参道 徒歩7分 明治神宮前 徒歩8分 原宿 徒歩9分 |
|---|
アクセスマップ
ストリートビュー



















































































