現在この物件は埋まっています
初台ロイヤルビル 2階 14.94坪
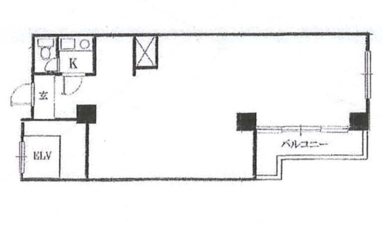
図面
賃貸情報
※当サイトの表記はすべて税抜きとなり、消費税が別途加算されます。
- 賃料
- 相談
- 面積
- 14.94坪 (49.4㎡)
- 共益/管理費
- 共益費相談
- 敷金/保証金
- 相談
- 更新料
- 無
- 礼金/償却
- 相談 / 無
- 住所
- 東京都渋谷区初台2丁目27-5
- 構造
- SRC / 地上10階
- 規模
- -地上10階
- 主な用途
- -
- 竣工
- 1973年1月
- 契約形態
- -
- 入居可能日
- -
- 天井高
- エレベータ
- 1基
- 駐車場
- 空有
- 基準階坪数
- -
その他条件
| 償却 | 無 |
|---|---|
| 更新料 | 無 |
| その他の費用 |
物件情報
| 空室 | - |
|---|---|
| 物件名 | 初台ロイヤルビル |
| 住所 | 東京都渋谷区初台2丁目27-5 |
| 構造 | SRC / 地上10階 |
| 竣工 | 1973年1月 |
| 耐震基準 | - |
設備詳細
| 空調 | - |
|---|---|
| トイレ | - |
| 床仕様 | - |
| エレベータ | 1 基 |
| 駐車場設備 | 空有 |
| その他 | 光ファイバー / 機械警備 / 管理人常駐 / マンション / オートロック |
最寄り駅
| 最寄り駅 | 初台 徒歩8分 参宮橋 徒歩7分 代々木八幡 徒歩7分 |
|---|
アクセスマップ
ストリートビュー





























































