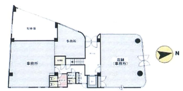
黒須ビル 1階 50.91坪
図面
賃貸情報
※当サイトの表記はすべて税抜きとなり、消費税が別途加算されます。
- 賃料
- 663,637 円
(坪:13,035 円)
- 面積
- 50.91坪 (168.29㎡)
- 共益/管理費
- 管理費152,728 円
- 敷金/保証金
- 6ヶ月
- 更新料
- 新賃料1ヶ月
- 礼金/償却
- 無 / 2ヶ月
- 住所
- 東京都新宿区西新宿5丁目11-3
- 構造
- RC / 地上3階
- 規模
- -地上3階
- 主な用途
- -
- 竣工
- 1989年7月
- 契約形態
- -
- 入居可能日
- -
- 天井高
- エレベータ
- 1基
- 駐車場
- 空有
- 基準階坪数
- -
その他条件
| 償却 | 2ヶ月 |
|---|---|
| 更新料 | 新賃料1ヶ月 |
| その他の費用 |
物件情報
| 空室 | あり |
|---|---|
| 物件名 | 黒須ビル |
| 住所 | 東京都新宿区西新宿5丁目11-3 |
| 構造 | RC / 地上3階 |
| 竣工 | 1989年7月 |
| 耐震基準 | 耐震基準クリア |
設備詳細
| 空調 | 個別空調 |
|---|---|
| トイレ | 男女別トイレ室内 / 男女別トイレ室外 |
| 床仕様 | - |
| エレベータ | 1 基 |
| 駐車場設備 | 空有 |
| その他 | 新耐震 |
最寄り駅
| 最寄り駅 | 西新宿五丁目 徒歩3分 都庁前 徒歩7分 西新宿 徒歩7分 |
|---|
アクセスマップ
ストリートビュー
















