現在この物件は埋まっています
ミカワヤビル 3階 24坪
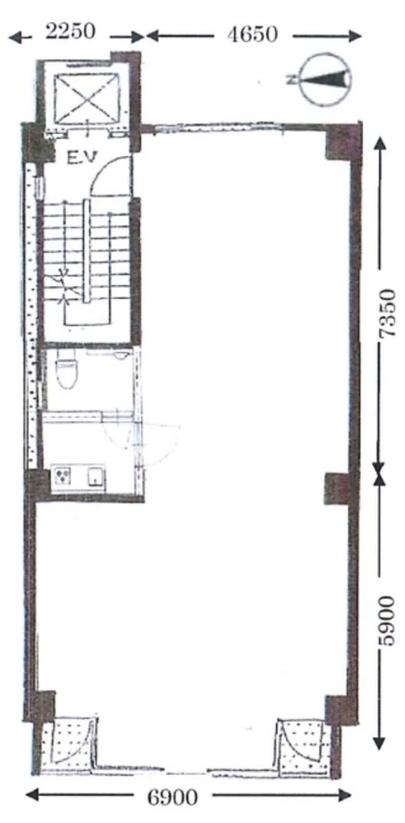
図面
賃貸情報
※当サイトの表記はすべて税抜きとなり、消費税が別途加算されます。
- 賃料
- 相談
- 面積
- 24坪 (79.34㎡)
- 共益/管理費
- 管理費48,000 円
- 敷金/保証金
- 6ヶ月
- 更新料
- 無
- 礼金/償却
- 2ヶ月 / 1ヶ月
- 住所
- 東京都港区赤坂2丁目10-4
- 構造
- SRC / 地上8階・地下1階
- 規模
- -地上8階 ・ 地下1階
- 主な用途
- -
- 竣工
- 1974年9月
- 契約形態
- -
- 入居可能日
- -
- 天井高
- エレベータ
- 1基
- 駐車場
- -
- 基準階坪数
- -
その他条件
| 償却 | 1ヶ月 |
|---|---|
| 更新料 | 無 |
| その他の費用 |
物件情報
| 空室 | - |
|---|---|
| 物件名 | ミカワヤビル |
| 住所 | 東京都港区赤坂2丁目10-4 |
| 構造 | SRC / 地上8階・地下1階 |
| 竣工 | 1974年9月 |
| 耐震基準 | - |
| 基準階坪数 | 24坪 |
設備詳細
| 空調 | - |
|---|---|
| トイレ | - |
| 床仕様 | - |
| エレベータ | 1 基 |
| 駐車場設備 | - |
| その他 | エレベータ有 |
最寄り駅
| 最寄り駅 | 溜池山王 徒歩1分 溜池山王 徒歩2分 国会議事堂前 徒歩4分 |
|---|
アクセスマップ
ストリートビュー















































































































