SNT八丁堀ビル 7階 19.99坪
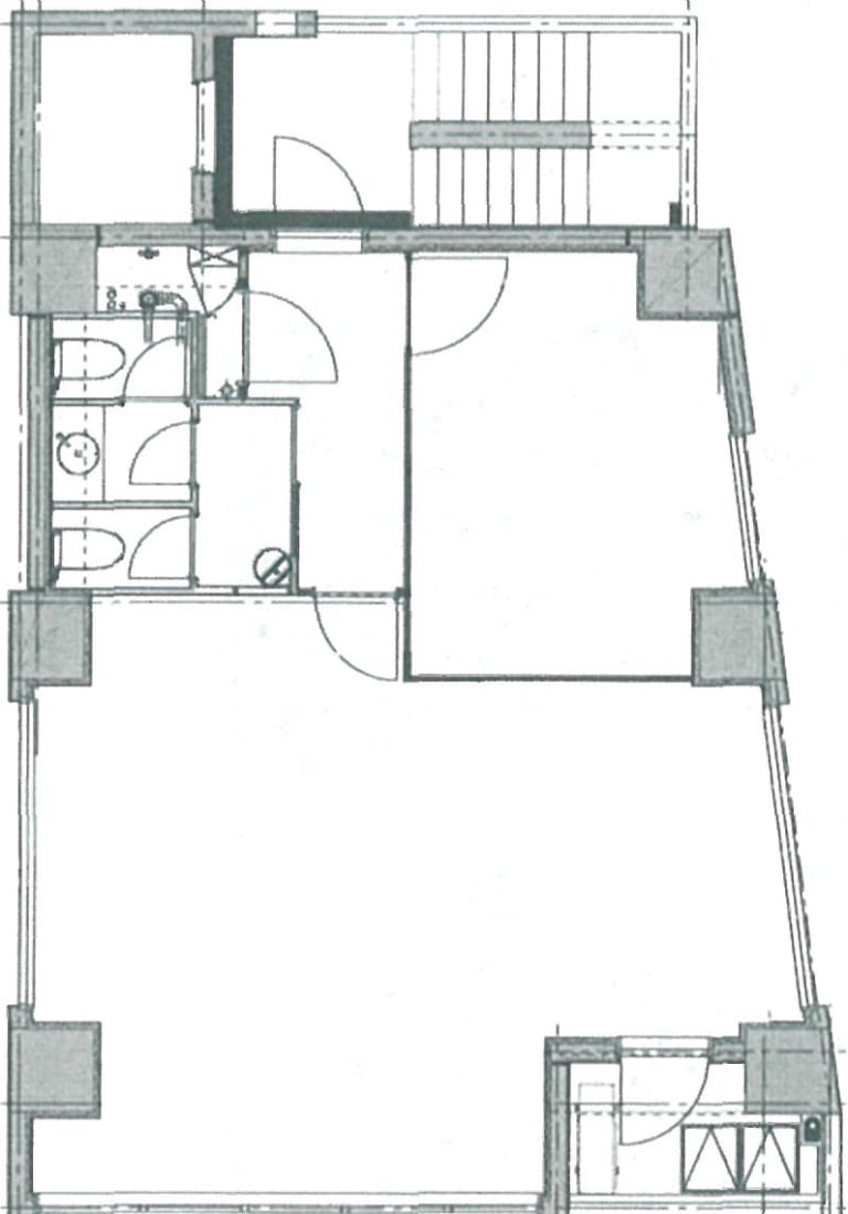
図面
賃貸情報
※当サイトの表記はすべて税抜きとなり、消費税が別途加算されます。
- 賃料
- 438,000 円
(坪:21,910 円)
- 面積
- 19.99坪 (66.09㎡)
- 共益/管理費
- 共益費賃料込
- 敷金/保証金
- 6ヶ月
- 更新料
- 新賃料1ヶ月
- 礼金/償却
- 無 / 2ヶ月
- 住所
- 東京都中央区新川2丁目8-8
- 構造
- RC / 地上7階・地下1階
- 規模
- -地上7階 ・ 地下1階
- 主な用途
- -
- 竣工
- 2021年2月
- 契約形態
- -
- 入居可能日
- 即時
- 天井高
- 2.7m
- エレベータ
- 1基
- 駐車場
- -
- 基準階坪数
- -
その他条件
| 償却 | 2ヶ月 |
|---|---|
| 更新料 | 新賃料1ヶ月 |
| 機械警備料 | 5,000円 |
物件情報
| 空室 | あり |
|---|---|
| 物件名 | SNT八丁堀ビル |
| 住所 | 東京都中央区新川2丁目8-8 |
| 構造 | RC / 地上7階・地下1階 |
| 竣工 | 2021年2月 |
| 耐震基準 | 耐震基準クリア |
設備詳細
| 空調 | 個別空調 |
|---|---|
| トイレ | 男女別トイレ室内 / 男女別トイレ室外 |
| 床仕様 | OA有(フリーアクセスフロア) |
| エレベータ | 1 基 |
| 駐車場設備 | - |
| その他 | 店舗可/飲食不可 / フリーレント / 新耐震 / 機械警備 / 24時間利用可 |
最寄り駅
| 最寄り駅 | 八丁堀 徒歩4分 八丁堀 徒歩2分 茅場町 徒歩5分 |
|---|
アクセスマップ
ストリートビュー


















































































