現在この物件は埋まっています
東神田堀商ビル 5階 81.28坪
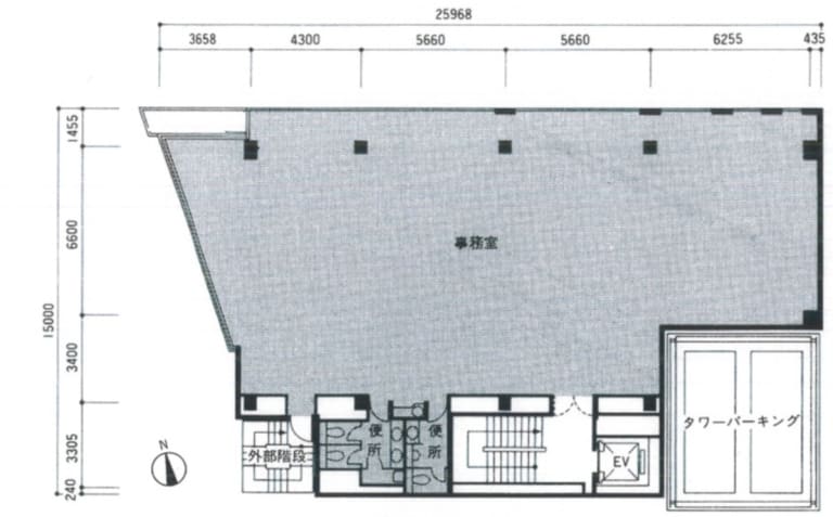
図面
賃貸情報
※当サイトの表記はすべて税抜きとなり、消費税が別途加算されます。
- 賃料
- 相談
- 面積
- 81.28坪 (268.7㎡)
- 共益/管理費
- 管理費284,480 円
- 敷金/保証金
- 12,192,000 円
- 更新料
- 無
- 礼金/償却
- 無 / 1ヶ月
- 住所
- 東京都千代田区東神田2丁目4-5
- 構造
- 鉄骨造 / 地上7階
- 規模
- 地上7階
- 主な用途
- -
- 竣工
- 1989年6月
- 契約形態
- -
- 入居可能日
- 即時
- 天井高
- 2.43m
- エレベータ
- 1基
- 駐車場
- 空有
- 基準階坪数
- -
その他条件
| 償却 | 1ヶ月 |
|---|---|
| 更新料 | 無 |
| その他の費用 |
物件情報
| 空室 | あり |
|---|---|
| 物件名 | 東神田堀商ビル |
| 住所 | 東京都千代田区東神田2丁目4-5 |
| 構造 | 鉄骨造 / 地上7階 |
| 竣工 | 1989年6月 |
| 耐震基準 | 耐震基準クリア |
| 基準階坪数 | 81.28坪 |
設備詳細
| 空調 | 個別空調 |
|---|---|
| トイレ | - |
| 床仕様 | OA有(フリーアクセスフロア) |
| エレベータ | 1 基 |
| 駐車場設備 | 空有 |
| その他 | 新耐震 / 光ファイバー / 機械警備 |
最寄り駅
| 最寄り駅 | 秋葉原 徒歩5分 岩本町 徒歩5分 秋葉原 徒歩7分 |
|---|
アクセスマップ
ストリートビュー



















































