現在この物件は埋まっています
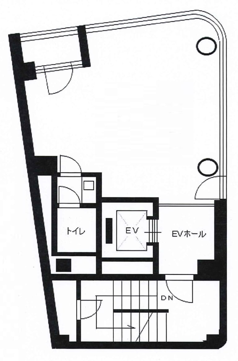
HOUWAビル 6階 10.87坪
図面
賃貸情報
※当サイトの表記はすべて税抜きとなり、消費税が別途加算されます。
- 賃料
- 相談
- 面積
- 10.87坪 (35.93㎡)
- 共益/管理費
- 共益費無
- 敷金/保証金
- 10ヶ月
- 更新料
- 新賃料1ヶ月
- 礼金/償却
- 2ヶ月 / 2ヶ月
- 住所
- 東京都渋谷区代々木1丁目32-12
- 構造
- 鉄骨造 / 地上8階
- 規模
- -地上8階
- 主な用途
- -
- 竣工
- 1990年8月
- 契約形態
- -
- 入居可能日
- 即時
- 天井高
- エレベータ
- 1基
- 駐車場
- -
- 基準階坪数
- -
その他条件
| 償却 | 2ヶ月 |
|---|---|
| 更新料 | 新賃料1ヶ月 |
| 機械警備料 | 16,500円 |
物件情報
| 空室 | - |
|---|---|
| 物件名 | HOUWAビル |
| 住所 | 東京都渋谷区代々木1丁目32-12 |
| 構造 | 鉄骨造 / 地上8階 |
| 竣工 | 1990年8月 |
| 耐震基準 | - |
設備詳細
| 空調 | - |
|---|---|
| トイレ | - |
| 床仕様 | - |
| エレベータ | 1 基 |
| 駐車場設備 | - |
| その他 | - |
最寄り駅
| 最寄り駅 | 代々木 徒歩1分 南新宿 徒歩4分 北参道 徒歩6分 |
|---|
アクセスマップ
ストリートビュー












































