現在この物件は埋まっています
江戸川橋杉原ビル 2階 22.85坪
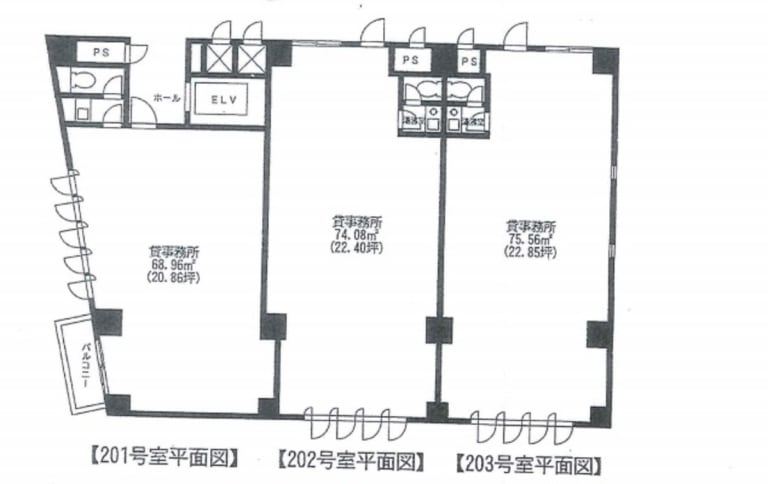
図面
賃貸情報
※当サイトの表記はすべて税抜きとなり、消費税が別途加算されます。
- 賃料
- 相談
- 面積
- 22.85坪 (75.56㎡)
- 共益/管理費
- 管理費20,000 円
- 敷金/保証金
- 2ヶ月
- 更新料
- 無
- 礼金/償却
- 1ヶ月 / 無
- 住所
- 東京都新宿区山吹町361
- 構造
- SRC / 地上11階
- 規模
- -地上11階
- 主な用途
- -
- 竣工
- 1990年12月
- 契約形態
- -
- 入居可能日
- 即時
- 天井高
- エレベータ
- 1基
- 駐車場
- 空無
- 基準階坪数
- -
その他条件
| 償却 | 無 |
|---|---|
| 更新料 | 無 |
| その他の費用 |
物件情報
| 空室 | - |
|---|---|
| 物件名 | 江戸川橋杉原ビル |
| 住所 | 東京都新宿区山吹町361 |
| 構造 | SRC / 地上11階 |
| 竣工 | 1990年12月 |
| 耐震基準 | 耐震基準クリア |
設備詳細
| 空調 | - |
|---|---|
| トイレ | - |
| 床仕様 | - |
| エレベータ | 1 基 |
| 駐車場設備 | 空無 |
| その他 | 新耐震 / 機械警備 / 24時間利用可 |
最寄り駅
| 最寄り駅 | 江戸川橋 徒歩4分 神楽坂 徒歩9分 早稲田 徒歩10分 |
|---|
アクセスマップ
ストリートビュー
































































