現在この物件は埋まっています
小伝馬町YSビル 3階 72.7坪
賃貸情報
※当サイトの表記はすべて税抜きとなり、消費税が別途加算されます。
- 賃料
- 相談
- 面積
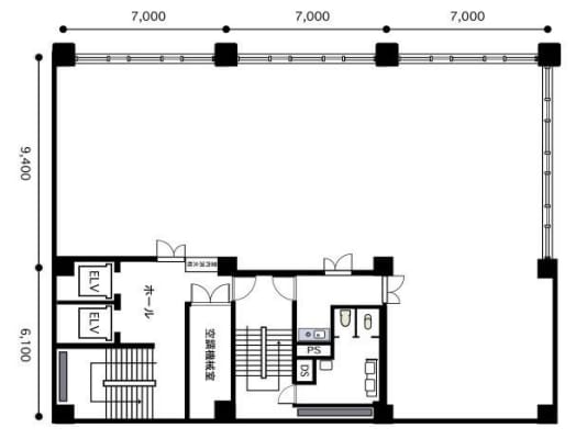
- 72.7坪 (240.34㎡)
- 共益/管理費
- 共益費290,800 円
- 敷金/保証金
- 10ヶ月
- 更新料
- 新賃料1ヶ月
- 礼金/償却
- 無 / 2ヶ月
- 住所
- 東京都中央区日本橋小伝馬町12-5
- 構造
- SRC / 地上9階・地下1階
- 規模
- -地上9階 ・ 地下1階
- 主な用途
- -
- 竣工
- 1972年6月
- 契約形態
- -
- 入居可能日
- 即時
- 天井高
- エレベータ
- 2基
- 駐車場
- 空有
- 基準階坪数
- -
その他条件
| 償却 | 2ヶ月 |
|---|---|
| 更新料 | 新賃料1ヶ月 |
| その他の費用 |
物件情報
| 空室 | あり |
|---|---|
| 物件名 | 小伝馬町YSビル |
| 住所 | 東京都中央区日本橋小伝馬町12-5 |
| 構造 | SRC / 地上9階・地下1階 |
| 竣工 | 1972年6月 |
| 耐震基準 | - |
設備詳細
| 空調 | - |
|---|---|
| トイレ | - |
| 床仕様 | - |
| エレベータ | 2 基 |
| 駐車場設備 | 空有 |
| その他 | 光ファイバー / 機械警備 / 24時間利用可 |
最寄り駅
| 最寄り駅 | 小伝馬町 徒歩1分 馬喰町 徒歩4分 新日本橋 徒歩7分 |
|---|
アクセスマップ
ストリートビュー





























































