現在この物件は埋まっています
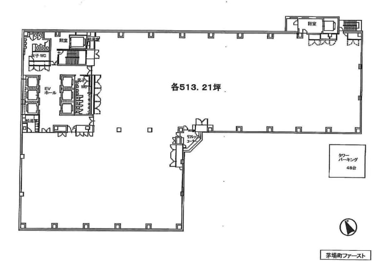
茅場町ファーストビル 3階 513.21坪
図面
賃貸情報
※当サイトの表記はすべて税抜きとなり、消費税が別途加算されます。
- 賃料
- 相談
- 面積
- 513.21坪 (1696.56㎡)
- 共益/管理費
- 管理費2,566,050 円
- 敷金/保証金
- 相談
- 更新料
- 無
- 礼金/償却
- 無 / 無
- 住所
- 東京都中央区新川1丁目17-21
- 構造
- 鉄骨造 / 地上12階
- 規模
- -地上12階
- 主な用途
- -
- 竣工
- 2002年4月
- 契約形態
- -
- 入居可能日
- 即時
- 天井高
- 2.9m
- エレベータ
- 2基
- 駐車場
- 空有
- 基準階坪数
- -
その他条件
| 償却 | 無 |
|---|---|
| 更新料 | 無 |
| その他の費用 |
物件情報
| 空室 | あり |
|---|---|
| 物件名 | 茅場町ファーストビル |
| 住所 | 東京都中央区新川1丁目17-21 |
| 構造 | 鉄骨造 / 地上12階 |
| 竣工 | 2002年4月 |
| 耐震基準 | 耐震基準クリア |
| 基準階坪数 | 513.21坪 |
設備詳細
| 空調 | 個別空調 / セントラル空調 |
|---|---|
| トイレ | - |
| 床仕様 | OA有(フリーアクセスフロア) |
| エレベータ | 2 基 |
| 駐車場設備 | - |
| その他 | 新耐震 / 大型ビル |
最寄り駅
| 最寄り駅 | 八丁堀 徒歩8分 茅場町 徒歩6分 茅場町 徒歩5分 |
|---|
アクセスマップ
ストリートビュー












