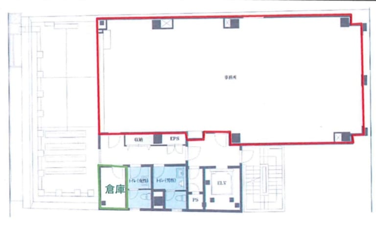
市ヶ谷クロスプレイスビル 3階 41.41坪
図面
賃貸情報
※当サイトの表記はすべて税抜きとなり、消費税が別途加算されます。
- 賃料
- 952,430 円
(坪:23,000 円)
- 面積
- 41.41坪 (136.89㎡)
- 共益/管理費
- 共益費賃料込
- 敷金/保証金
- 6ヶ月
- 更新料
- 新賃料1ヶ月
- 礼金/償却
- 無 / 無
- 住所
- 東京都新宿区市谷田町2丁目7-15
- 構造
- SRC / 地上9階・地下2階
- 規模
- -地上9階 ・ 地下2階
- 主な用途
- -
- 竣工
- 1993年6月
- 契約形態
- -
- 入居可能日
- 予定 2026年 7月 上旬
- 天井高
- エレベータ
- 2基
- 駐車場
- -
- 基準階坪数
- -
その他条件
| 償却 | 無 |
|---|---|
| 更新料 | 新賃料1ヶ月 |
| その他の費用 |
物件情報
| 空室 | あり |
|---|---|
| 物件名 | 市ヶ谷クロスプレイスビル |
| 住所 | 東京都新宿区市谷田町2丁目7-15 |
| 構造 | SRC / 地上9階・地下2階 |
| 竣工 | 1993年6月 |
| 耐震基準 | 耐震基準クリア |
設備詳細
| 空調 | 個別空調 |
|---|---|
| トイレ | - |
| 床仕様 | OA有(フリーアクセスフロア) |
| エレベータ | 2 基 |
| 駐車場設備 | - |
| その他 | 新耐震 / 機械警備 / 24時間利用可 |
最寄り駅
| 最寄り駅 | 市ケ谷 徒歩7分 市ヶ谷 徒歩2分 市ケ谷 徒歩2分 |
|---|
アクセスマップ
ストリートビュー











































































