現在この物件は埋まっています
三井住友銀行都立大学駅前ビル 5階 149.77坪
賃貸情報
※当サイトの表記はすべて税抜きとなり、消費税が別途加算されます。
- 賃料
- 相談
- 面積
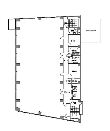
- 149.77坪 (495.11㎡)
- 共益/管理費
- 管理費569,126 円
- 敷金/保証金
- 相談
- 更新料
- 無
- 礼金/償却
- 無 / 無
- 住所
- 東京都目黒区中根1丁目3-1
- 構造
- SRC / 地上8階・地下1階
- 規模
- -地上8階 ・ 地下1階
- 主な用途
- -
- 竣工
- 1987年1月
- 契約形態
- -
- 入居可能日
- -
- 天井高
- 2.6m
- エレベータ
- 2基
- 駐車場
- 空無
- 基準階坪数
- -
その他条件
| 償却 | 無 |
|---|---|
| 更新料 | 無 |
| その他の費用 |
物件情報
| 空室 | あり |
|---|---|
| 物件名 | 三井住友銀行都立大学駅前ビル |
| 住所 | 東京都目黒区中根1丁目3-1 |
| 構造 | SRC / 地上8階・地下1階 |
| 竣工 | 1987年1月 |
| 耐震基準 | 耐震基準クリア |
設備詳細
| 空調 | - |
|---|---|
| トイレ | - |
| 床仕様 | - |
| エレベータ | 2 基 |
| 駐車場設備 | 空無 |
| その他 | 新耐震 / 機械警備 / 機械式駐車場 / 大型ビル |
最寄り駅
| 最寄り駅 | 都立大学 徒歩1分 自由が丘 徒歩16分 緑が丘 徒歩17分 |
|---|
アクセスマップ
ストリートビュー



