現在この物件は埋まっています
国際興業三田第2ビル 4階 337.94坪
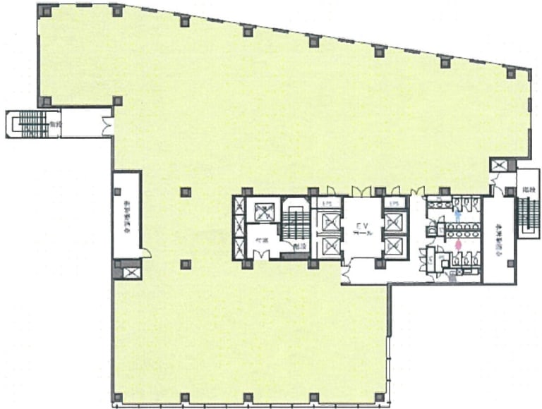
図面
賃貸情報
※当サイトの表記はすべて税抜きとなり、消費税が別途加算されます。
- 賃料
- 相談
- 面積
- 337.94坪 (1117.16㎡)
- 共益/管理費
- 共益費1,013,820 円
- 敷金/保証金
- 10ヶ月
- 更新料
- 無
- 礼金/償却
- 無 / 無
- 住所
- 東京都港区三田3丁目11-24
- 構造
- 鉄骨造 / 地上9階
- 規模
- -地上9階
- 主な用途
- -
- 竣工
- 2001年10月
- 契約形態
- -
- 入居可能日
- -
- 天井高
- 2.6m
- エレベータ
- 5基
- 駐車場
- 空有
- 基準階坪数
- -
その他条件
| 償却 | 無 |
|---|---|
| 更新料 | 無 |
| その他の費用 |
物件情報
| 空室 | - |
|---|---|
| 物件名 | 国際興業三田第2ビル |
| 住所 | 東京都港区三田3丁目11-24 |
| 構造 | 鉄骨造 / 地上9階 |
| 竣工 | 2001年10月 |
| 耐震基準 | 耐震基準クリア |
| 基準階坪数 | 337.94坪 |
設備詳細
| 空調 | - |
|---|---|
| トイレ | - |
| 床仕様 | - |
| エレベータ | 5 基 |
| 駐車場設備 | 空有 |
| その他 | 新耐震 / 光ファイバー / 機械警備 / 管理人常駐 / 大型ビル |
最寄り駅
| 最寄り駅 | 泉岳寺 徒歩3分 田町 徒歩13分 白金高輪 徒歩9分 |
|---|
アクセスマップ
ストリートビュー





