麹町シャインビル 2階 24.45坪
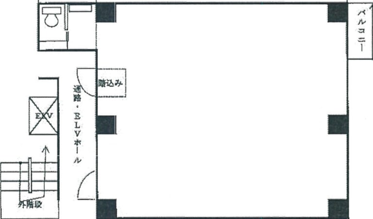
図面
賃貸情報
※当サイトの表記はすべて税抜きとなり、消費税が別途加算されます。
- 賃料
- 330,000 円
(坪:13,496 円)
- 面積
- 24.45坪 (80.83㎡)
- 共益/管理費
- 管理費55,137 円
- 敷金/保証金
- 6ヶ月
- 更新料
- 新賃料1ヶ月
- 礼金/償却
- 1ヶ月 / 1ヶ月
- 住所
- 東京都千代田区麹町4丁目4-3
- 構造
- SRC / 地上10階・地下1階
- 規模
- -地上10階 ・ 地下1階
- 主な用途
- -
- 竣工
- 1985年11月
- 契約形態
- -
- 入居可能日
- 即時
- 天井高
- エレベータ
- 1基
- 駐車場
- -
- 基準階坪数
- -
その他条件
| 償却 | 1ヶ月 |
|---|---|
| 更新料 | 新賃料1ヶ月 |
| その他の費用 |
物件情報
| 空室 | あり |
|---|---|
| 物件名 | 麹町シャインビル |
| 住所 | 東京都千代田区麹町4丁目4-3 |
| 構造 | SRC / 地上10階・地下1階 |
| 竣工 | 1985年11月 |
| 耐震基準 | 耐震基準クリア |
設備詳細
| 空調 | - |
|---|---|
| トイレ | - |
| 床仕様 | - |
| エレベータ | 1 基 |
| 駐車場設備 | - |
| その他 | 店舗可/飲食不可 / フリーレント / 新耐震 / 光ファイバー / 24時間利用可 |
最寄り駅
| 最寄り駅 | 四ツ谷 徒歩6分 麹町 徒歩4分 四ツ谷 徒歩4分 |
|---|
アクセスマップ
ストリートビュー



































































































