現在この物件は埋まっています
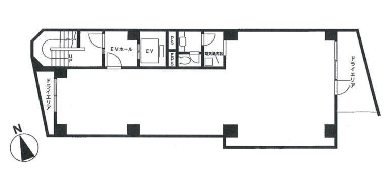
鶯ビル B1階 30.12坪
図面
賃貸情報
※当サイトの表記はすべて税抜きとなり、消費税が別途加算されます。
- 賃料
- 相談
- 面積
- 30.12坪 (99.57㎡)
- 共益/管理費
- 管理費90,360 円
- 敷金/保証金
- 2,409,600 円
- 更新料
- 無
- 礼金/償却
- 無 / 1ヶ月
- 住所
- 東京都港区六本木3丁目15-21
- 構造
- SRC / 地上8階・地下1階
- 規模
- -地上8階 ・ 地下1階
- 主な用途
- -
- 竣工
- 1986年5月
- 契約形態
- -
- 入居可能日
- -
- 天井高
- エレベータ
- 1基
- 駐車場
- -
- 基準階坪数
- -
その他条件
| 償却 | 1ヶ月 |
|---|---|
| 更新料 | 無 |
| その他の費用 |
物件情報
| 空室 | あり |
|---|---|
| 物件名 | 鶯ビル |
| 住所 | 東京都港区六本木3丁目15-21 |
| 構造 | SRC / 地上8階・地下1階 |
| 竣工 | 1986年5月 |
| 耐震基準 | 耐震基準クリア |
設備詳細
| 空調 | 個別空調 |
|---|---|
| トイレ | - |
| 床仕様 | OA有(フリーアクセスフロア) |
| エレベータ | 1 基 |
| 駐車場設備 | - |
| その他 | クリニック全般 / 新耐震 / 光ファイバー / 機械警備 / 24時間利用可 / オートロック |
最寄り駅
| 最寄り駅 | 六本木 徒歩3分 六本木一丁目 徒歩6分 麻布十番 徒歩8分 |
|---|
アクセスマップ
ストリートビュー

























































































