現在この物件は埋まっています
大成大手町ビル B1階 45.33坪
賃貸情報
※当サイトの表記はすべて税抜きとなり、消費税が別途加算されます。
- 賃料
- 相談
- 面積
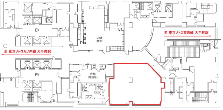
- 45.33坪 (149.86㎡)
- 共益/管理費
- 共益費226,650 円
- 敷金/保証金
- 12ヶ月
- 更新料
- 無
- 礼金/償却
- 無 / 無
- 住所
- 東京都千代田区大手町2丁目1-1
- 構造
- RC / 地上27階・地下5階
- 規模
- -地上27階 ・ 地下5階
- 主な用途
- -
- 竣工
- 1994年2月
- 契約形態
- -
- 入居可能日
- 即時
- 天井高
- エレベータ
- 12基
- 駐車場
- 空有
- 基準階坪数
- -
その他条件
| 償却 | 無 |
|---|---|
| 更新料 | 無 |
| その他の費用 |
物件情報
| 空室 | あり |
|---|---|
| 物件名 | 大成大手町ビル |
| 住所 | 東京都千代田区大手町2丁目1-1 |
| 構造 | RC / 地上27階・地下5階 |
| 竣工 | 1994年2月 |
| 耐震基準 | 耐震基準クリア |
| 基準階坪数 | 369.05坪 |
設備詳細
| 空調 | セントラル空調 |
|---|---|
| トイレ | - |
| 床仕様 | OA有(フリーアクセスフロア) |
| エレベータ | 12 基 |
| 駐車場設備 | - |
| その他 | クリニック全般 / 新耐震 / 光ファイバー / 機械警備 / 管理人常駐 / 高層ビル / 24時間利用可 / 機械式駐車場 / 大型ビル |
最寄り駅
| 最寄り駅 | 大手町 徒歩1分 大手町 徒歩2分 東京 徒歩5分 |
|---|
アクセスマップ
ストリートビュー
















































































