現在この物件は埋まっています
光南ビル 5階 10.73坪
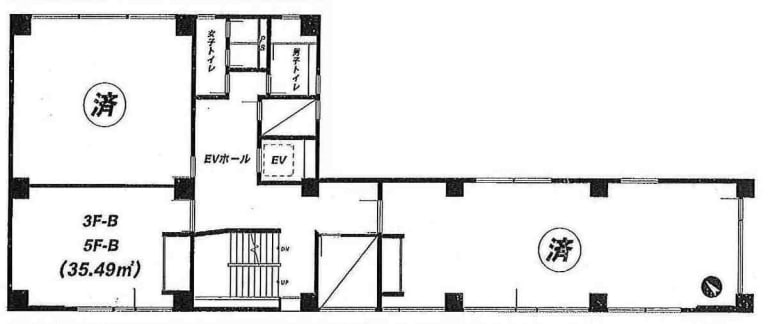
図面
賃貸情報
※当サイトの表記はすべて税抜きとなり、消費税が別途加算されます。
- 賃料
- 相談
- 面積
- 10.73坪 (35.47㎡)
- 共益/管理費
- 共益費無
- 敷金/保証金
- 4ヶ月
- 更新料
- 無
- 礼金/償却
- 無 / 10%
- 住所
- 神奈川県横浜市 中区相生町1丁目18
- 構造
- RC / 地上7階
- 規模
- -地上7階
- 主な用途
- -
- 竣工
- 1973年12月
- 契約形態
- -
- 入居可能日
- 即時
- 天井高
- エレベータ
- 1基
- 駐車場
- -
- 基準階坪数
- -
その他条件
| 償却 | 10% |
|---|---|
| 更新料 | 無 |
| その他の費用 |
物件情報
| 空室 | - |
|---|---|
| 物件名 | 光南ビル |
| 住所 | 神奈川県横浜市 中区相生町1丁目18 |
| 構造 | RC / 地上7階 |
| 竣工 | 1973年12月 |
| 耐震基準 | - |
設備詳細
| 空調 | - |
|---|---|
| トイレ | - |
| 床仕様 | - |
| エレベータ | 1 基 |
| 駐車場設備 | - |
| その他 | - |
最寄り駅
| 最寄り駅 | 関内 徒歩5分 日本大通り 徒歩4分 関内 徒歩4分 |
|---|
アクセスマップ
ストリートビュー












