現在この物件は埋まっています
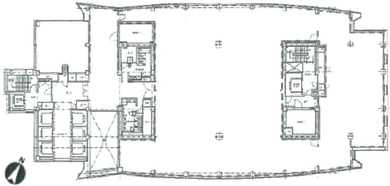
天王洲オーシャンスクエアビル 6階 429.31坪
図面
賃貸情報
※当サイトの表記はすべて税抜きとなり、消費税が別途加算されます。
- 賃料
- 相談
- 面積
- 429.31坪 (1419.21㎡)
- 共益/管理費
- 共益費相談
- 敷金/保証金
- 相談
- 更新料
- 無
- 礼金/償却
- 無 / 無
- 住所
- 東京都品川区東品川2丁目2-20
- 構造
- その他 / 地上25階・地下2階
- 規模
- -地上25階 ・ 地下2階
- 主な用途
- -
- 竣工
- 1994年10月
- 契約形態
- -
- 入居可能日
- 即時
- 天井高
- 2.7m
- エレベータ
- 14基
- 駐車場
- 空有
- 基準階坪数
- -
その他条件
| 償却 | 無 |
|---|---|
| 更新料 | 無 |
| その他の費用 |
物件情報
| 空室 | あり |
|---|---|
| 物件名 | 天王洲オーシャンスクエアビル |
| 住所 | 東京都品川区東品川2丁目2-20 |
| 構造 | その他 / 地上25階・地下2階 |
| 竣工 | 1994年10月 |
| 耐震基準 | 耐震基準クリア |
| 基準階坪数 | 429.31坪 |
設備詳細
| 空調 | セントラル空調 |
|---|---|
| トイレ | 男女別トイレ室内 / 男女別トイレ室外 |
| 床仕様 | OA有(フリーアクセスフロア) |
| エレベータ | 14 基 |
| 駐車場設備 | - |
| その他 | クリニック全般 / 新耐震 / 光ファイバー / 24時間利用可 |
最寄り駅
| 最寄り駅 | 天王洲アイル 徒歩1分 新馬場 徒歩12分 品川 徒歩15分 |
|---|
アクセスマップ
ストリートビュー





