現在この物件は埋まっています
神宮前214ビル B1階 321.85坪
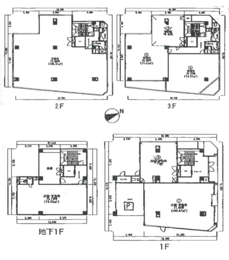
図面
賃貸情報
※当サイトの表記はすべて税抜きとなり、消費税が別途加算されます。
- 賃料
- 相談
- 面積
- 321.85坪 (1063.99㎡)
- 共益/管理費
- 共益費無
- 敷金/保証金
- 6ヶ月
- 更新料
- 無
- 礼金/償却
- 無 / 2ヶ月
- 住所
- 東京都渋谷区神宮前2丁目14-19
- 構造
- RC / 地上4階・地下1階
- 規模
- -地上4階 ・ 地下1階
- 主な用途
- -
- 竣工
- 1990年1月
- 契約形態
- -
- 入居可能日
- -
- 天井高
- エレベータ
- 1基
- 駐車場
- -
- 基準階坪数
- -
その他条件
| 償却 | 2ヶ月 |
|---|---|
| 更新料 | 無 |
| その他の費用 |
物件情報
| 空室 | - |
|---|---|
| 物件名 | 神宮前214ビル |
| 住所 | 東京都渋谷区神宮前2丁目14-19 |
| 構造 | RC / 地上4階・地下1階 |
| 竣工 | 1990年1月 |
| 耐震基準 | - |
設備詳細
| 空調 | - |
|---|---|
| トイレ | - |
| 床仕様 | - |
| エレベータ | 1 基 |
| 駐車場設備 | - |
| その他 | - |
最寄り駅
| 最寄り駅 | 北参道 徒歩8分 外苑前 徒歩9分 国立競技場 徒歩9分 |
|---|
アクセスマップ
ストリートビュー






