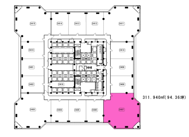
横浜ランドマークタワービル 24階 94.36坪
図面
賃貸情報
※当サイトの表記はすべて税抜きとなり、消費税が別途加算されます。
- 賃料
- 相談
- 面積
- 94.36坪 (311.94㎡)
- 共益/管理費
- 共益費相談
- 敷金/保証金
- 相談
- 更新料
- 無
- 礼金/償却
- 無 / 無
- 住所
- 神奈川県横浜市 西区みなとみらい2丁目2-1
- 構造
- 鉄骨造 / 地上70階・地下4階
- 規模
- -地上70階 ・ 地下4階
- 主な用途
- -
- 竣工
- 1993年7月
- 契約形態
- -
- 入居可能日
- 即時
- 天井高
- エレベータ
- 79基
- 駐車場
- -
- 基準階坪数
- -
その他条件
| 償却 | 無 |
|---|---|
| 更新料 | 無 |
| その他の費用 |
物件情報
| 空室 | あり |
|---|---|
| 物件名 | 横浜ランドマークタワービル |
| 住所 | 神奈川県横浜市 西区みなとみらい2丁目2-1 |
| 構造 | 鉄骨造 / 地上70階・地下4階 |
| 竣工 | 1993年7月 |
| 耐震基準 | 耐震基準クリア |
| 基準階坪数 | 803坪 |
設備詳細
| 空調 | セントラル空調 |
|---|---|
| トイレ | - |
| 床仕様 | OA有(フリーアクセスフロア) |
| エレベータ | 79 基 |
| 駐車場設備 | - |
| その他 | 新耐震 |
最寄り駅
| 最寄り駅 | みなとみらい 徒歩5分 桜木町 徒歩5分 馬車道 徒歩8分 |
|---|
アクセスマップ
ストリートビュー



























