現在この物件は埋まっています
KAPPADCビル 4階 25.27坪
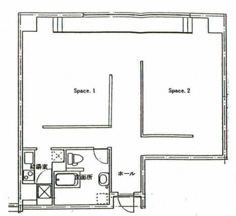
図面
賃貸情報
※当サイトの表記はすべて税抜きとなり、消費税が別途加算されます。
- 賃料
- 相談
- 面積
- 25.27坪 (83.55㎡)
- 共益/管理費
- 管理費27,000 円
- 敷金/保証金
- 3ヶ月
- 更新料
- 無
- 礼金/償却
- 1ヶ月 / 無
- 住所
- 東京都台東区松が谷3丁目1-12
- 構造
- SRC / 地上6階
- 規模
- -地上6階
- 主な用途
- -
- 竣工
- 1988年1月
- 契約形態
- -
- 入居可能日
- 即時
- 天井高
- 3m
- エレベータ
- 1基
- 駐車場
- -
- 基準階坪数
- -
その他条件
| 償却 | 無 |
|---|---|
| 更新料 | 無 |
| その他の費用 |
物件情報
| 空室 | - |
|---|---|
| 物件名 | KAPPADCビル |
| 住所 | 東京都台東区松が谷3丁目1-12 |
| 構造 | SRC / 地上6階 |
| 竣工 | 1988年1月 |
| 耐震基準 | 耐震基準クリア |
設備詳細
| 空調 | - |
|---|---|
| トイレ | - |
| 床仕様 | - |
| エレベータ | 1 基 |
| 駐車場設備 | - |
| その他 | 新耐震 / 光ファイバー |
最寄り駅
| 最寄り駅 | 浅草 徒歩5分 田原町 徒歩8分 入谷 徒歩9分 |
|---|
アクセスマップ
ストリートビュー

























































