現在この物件は埋まっています
三経35ビル B1-3階 1,029.06坪
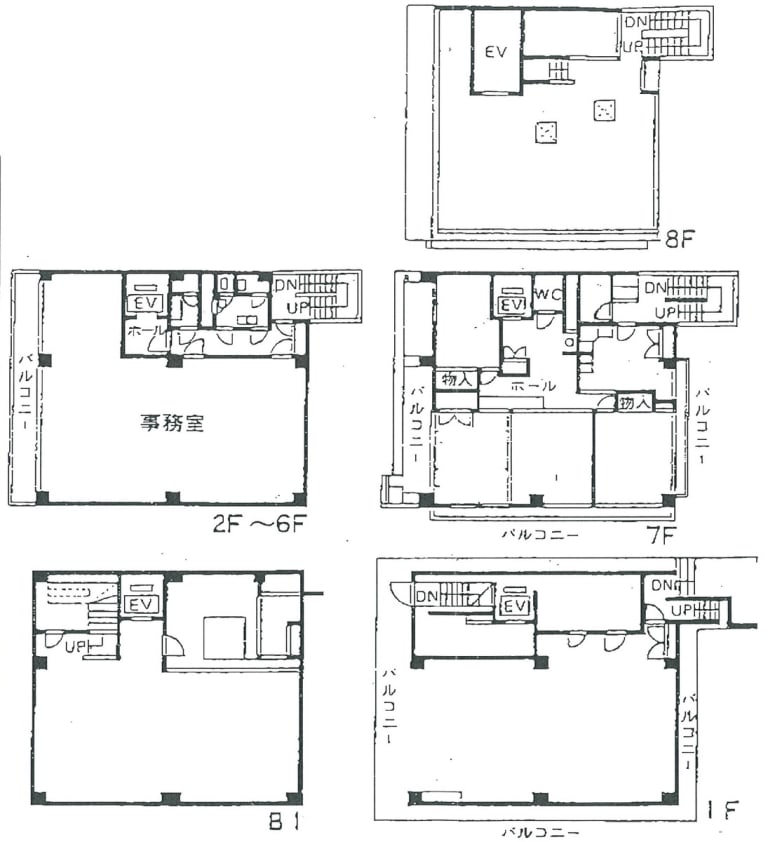
図面
賃貸情報
※当サイトの表記はすべて税抜きとなり、消費税が別途加算されます。
- 賃料
- 相談
- 面積
- 1,029.06坪 (3401.85㎡)
- 共益/管理費
- 共益費3,910,428 円
- 敷金/保証金
- 18.14ヶ月
- 更新料
- 新賃料1.5ヶ月
- 礼金/償却
- 1ヶ月 / 20%
- 住所
- 東京都町田市原町田4丁目4-7
- 構造
- SRC / 地上9階・地下1階
- 規模
- -地上9階 ・ 地下1階
- 主な用途
- -
- 竣工
- 1979年1月
- 契約形態
- -
- 入居可能日
- -
- 天井高
- エレベータ
- 3基
- 駐車場
- -
- 基準階坪数
- -
その他条件
| 償却 | 20% |
|---|---|
| 更新料 | 新賃料1.5ヶ月 |
| 看板使用料 | 80,000円 |
物件情報
| 空室 | あり |
|---|---|
| 物件名 | 三経35ビル |
| 住所 | 東京都町田市原町田4丁目4-7 |
| 構造 | SRC / 地上9階・地下1階 |
| 竣工 | 1979年1月 |
| 耐震基準 | - |
設備詳細
| 空調 | 個別空調 |
|---|---|
| トイレ | - |
| 床仕様 | - |
| エレベータ | 3 基 |
| 駐車場設備 | - |
| その他 | 居抜き / 店舗可/飲食不可 / スケルトン / 大型ビル |
最寄り駅
| 最寄り駅 | 町田 徒歩3分 町田 徒歩4分 相模大野 徒歩17分 |
|---|
アクセスマップ
ストリートビュー

