現在この物件は埋まっています
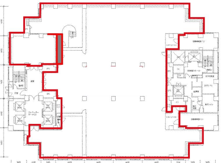
スフィアタワー天王洲ビル 23階 325.37坪
賃貸情報
※当サイトの表記はすべて税抜きとなり、消費税が別途加算されます。
- 賃料
- 相談
- 面積
- 325.37坪 (1075.6㎡)
- 共益/管理費
- 共益費賃料込
- 敷金/保証金
- 12ヶ月
- 更新料
- 無
- 礼金/償却
- 無 / 無
- 住所
- 東京都品川区東品川2丁目2-8
- 構造
- 鉄骨造 / 地上28階・地下2階
- 規模
- -地上28階 ・ 地下2階
- 主な用途
- -
- 竣工
- 1993年4月
- 契約形態
- -
- 入居可能日
- 即時
- 天井高
- 2.65m
- エレベータ
- 9基
- 駐車場
- 空有
- 基準階坪数
- -
その他条件
| 償却 | 無 |
|---|---|
| 更新料 | 無 |
| その他の費用 |
物件情報
| 空室 | あり |
|---|---|
| 物件名 | スフィアタワー天王洲ビル |
| 住所 | 東京都品川区東品川2丁目2-8 |
| 構造 | 鉄骨造 / 地上28階・地下2階 |
| 竣工 | 1993年4月 |
| 耐震基準 | 耐震基準クリア |
| 基準階坪数 | 306坪 |
設備詳細
| 空調 | セントラル空調 |
|---|---|
| トイレ | - |
| 床仕様 | OA有(フリーアクセスフロア) |
| エレベータ | 9 基 |
| 駐車場設備 | 空有 |
| その他 | スケルトン / 新耐震 / 光ファイバー / 機械警備 / 高層ビル / 24時間利用可 / 大型ビル |
最寄り駅
| 最寄り駅 | 天王洲アイル 徒歩1分 天王洲アイル 徒歩3分 北品川 徒歩12分 |
|---|
アクセスマップ
ストリートビュー





