ライオンズマンション西新宿ビル 5階 17.36坪
賃貸情報
※当サイトの表記はすべて税抜きとなり、消費税が別途加算されます。
- 賃料
- 269,000 円
(坪:15,486 円)
- 面積
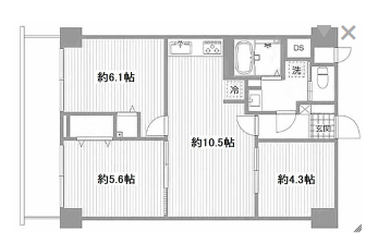
- 17.36坪 (57.4㎡)
- 共益/管理費
- 共益費15,000 円
- 敷金/保証金
- 3ヶ月
- 更新料
- 新賃料1ヶ月
- 礼金/償却
- 1ヶ月 / 2ヶ月
- 住所
- 東京都新宿区西新宿3丁目15-5
- 構造
- SRC / 地上11階
- 規模
- 地上11階
- 主な用途
- -
- 竣工
- 1980年2月
- 契約形態
- -
- 入居可能日
- 即時
- 天井高
- エレベータ
- 2基
- 駐車場
- -
- 基準階坪数
- -
その他条件
| 償却 | 2ヶ月 |
|---|---|
| 更新料 | 新賃料1ヶ月 |
| その他の費用 |
物件情報
| 空室 | あり |
|---|---|
| 物件名 | ライオンズマンション西新宿ビル |
| 住所 | 東京都新宿区西新宿3丁目15-5 |
| 構造 | SRC / 地上11階 |
| 竣工 | 1980年2月 |
| 耐震基準 | - |
設備詳細
| 空調 | - |
|---|---|
| トイレ | - |
| 床仕様 | - |
| エレベータ | 2 基 |
| 駐車場設備 | - |
| その他 | エレベータ有 |
最寄り駅
| 最寄り駅 | 都庁前 徒歩8分 参宮橋 徒歩9分 初台 徒歩6分 |
|---|
アクセスマップ
ストリートビュー

















































