泉水橋クリニックビル 1階 34.73坪
賃貸情報
※当サイトの表記はすべて税抜きとなり、消費税が別途加算されます。
- 賃料
- 374,700 円
(坪:10,788 円)
- 面積
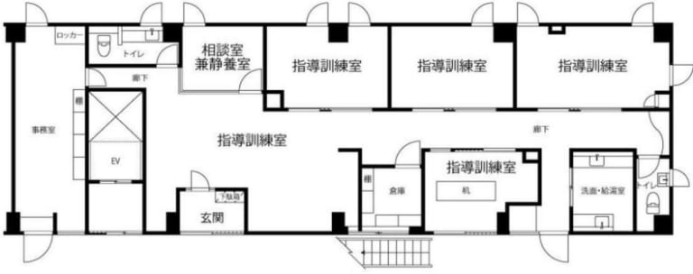
- 34.73坪 (114.84㎡)
- 共益/管理費
- 管理費37,000 円
- 敷金/保証金
- 4ヶ月
- 更新料
- 新賃料1ヶ月
- 礼金/償却
- 1ヶ月 / 無
- 住所
- 神奈川県鎌倉市十二所6-1
- 構造
- RC / 地上2階
- 規模
- 地上2階
- 主な用途
- -
- 竣工
- 2012年2月
- 契約形態
- -
- 入居可能日
- 即時
- 天井高
- エレベータ
- 1基
- 駐車場
- -
- 基準階坪数
- -
その他条件
| 償却 | 無 |
|---|---|
| 更新料 | 新賃料1ヶ月 |
| セキュリティ管理費 | 15,000円 |
物件情報
| 空室 | あり |
|---|---|
| 物件名 | 泉水橋クリニックビル |
| 住所 | 神奈川県鎌倉市十二所6-1 |
| 構造 | RC / 地上2階 |
| 竣工 | 2012年2月 |
| 耐震基準 | 耐震基準クリア |
設備詳細
| 空調 | - |
|---|---|
| トイレ | - |
| 床仕様 | - |
| エレベータ | 1 基 |
| 駐車場設備 | - |
| その他 | 居抜き / クリニック全般 / 新耐震 |
最寄り駅
| 最寄り駅 | 鎌倉 徒歩null分 |
|---|
アクセスマップ
ストリートビュー




