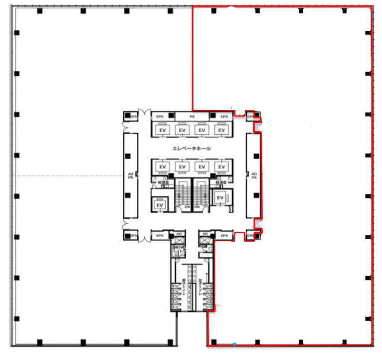
豊洲プライムスクエアビル 11階 450.74坪
賃貸情報
※当サイトの表記はすべて税抜きとなり、消費税が別途加算されます。
- 賃料
- 相談
- 面積
- 450.74坪 (1490.04㎡)
- 共益/管理費
- 共益費賃料込
- 敷金/保証金
- 12ヶ月
- 更新料
- 無
- 礼金/償却
- 無 / 無
- 住所
- 東京都江東区豊洲5丁目6-36
- 構造
- 地上12階
- 規模
- 地上12階
- 主な用途
- -
- 竣工
- 2010年8月
- 契約形態
- -
- 入居可能日
- 予定 2026年 8月 上旬
- 天井高
- エレベータ
- 10基
- 駐車場
- 空有
- 基準階坪数
- -
その他条件
| 償却 | 無 |
|---|---|
| 更新料 | 無 |
| その他の費用 |
物件情報
| 空室 | あり |
|---|---|
| 物件名 | 豊洲プライムスクエアビル |
| 住所 | 東京都江東区豊洲5丁目6-36 |
| 構造 | 地上12階 |
| 竣工 | 2010年8月 |
| 耐震基準 | 耐震基準クリア |
| 基準階坪数 | 901.48坪 |
設備詳細
| 空調 | 個別空調 |
|---|---|
| トイレ | - |
| 床仕様 | OA有(フリーアクセスフロア) |
| エレベータ | 10 基 |
| 駐車場設備 | 空有 |
| その他 | フリーレント / クリニック全般 / 新耐震 / 光ファイバー / 24時間利用可 |
最寄り駅
| 最寄り駅 | 豊洲 徒歩3分 豊洲 徒歩4分 新豊洲 徒歩10分 |
|---|
アクセスマップ
ストリートビュー







