現在この物件は埋まっています
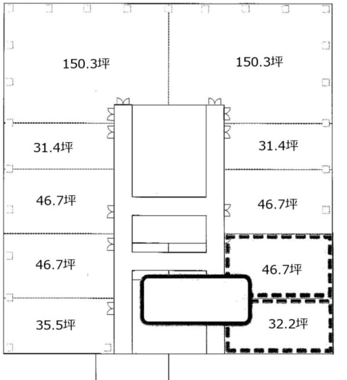
ミッドランドスクエアビル 15階 31.4坪
賃貸情報
※当サイトの表記はすべて税抜きとなり、消費税が別途加算されます。
- 賃料
- 相談
- 面積
- 31.4坪 (103.8㎡)
- 共益/管理費
- 共益費相談
- 敷金/保証金
- 相談
- 更新料
- 無
- 礼金/償却
- 無 / 無
- 住所
- 愛知県名古屋市 中村区名駅4丁目7-1
- 構造
- SRC / 地上47階・地下6階
- 規模
- -地上47階 ・ 地下6階
- 主な用途
- -
- 竣工
- 2006年9月
- 契約形態
- -
- 入居可能日
- -
- 天井高
- エレベータ
- 41基
- 駐車場
- 空有
- 基準階坪数
- -
その他条件
| 償却 | 無 |
|---|---|
| 更新料 | 無 |
| その他の費用 |
物件情報
| 空室 | あり |
|---|---|
| 物件名 | ミッドランドスクエアビル |
| 住所 | 愛知県名古屋市 中村区名駅4丁目7-1 |
| 構造 | SRC / 地上47階・地下6階 |
| 竣工 | 2006年9月 |
| 耐震基準 | 耐震基準クリア |
| 基準階坪数 | 618坪 |
設備詳細
| 空調 | 個別空調 / セントラル空調 |
|---|---|
| トイレ | - |
| 床仕様 | OA有(フリーアクセスフロア) |
| エレベータ | 41 基 |
| 駐車場設備 | 空有 |
| その他 | 新耐震 / 機械警備 / 管理人常駐 / 高層ビル / 大型ビル |
最寄り駅
| 最寄り駅 | 名古屋 徒歩5分 名鉄名古屋 徒歩3分 名古屋 徒歩3分 |
|---|
アクセスマップ
ストリートビュー















































