現在この物件は埋まっています
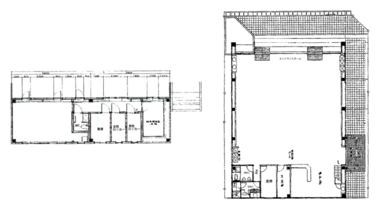
甲子園1ビル 1-2階 112.2坪
平面図
賃貸情報
※当サイトの表記はすべて税抜きとなり、消費税が別途加算されます。
- 賃料
- 相談
- 面積
- 112.2坪 (370.9㎡)
- 共益/管理費
- 共益費賃料込
- 敷金/保証金
- 10ヶ月
- 更新料
- 新賃料1ヶ月
- 礼金/償却
- 1ヶ月 / 20%
- 住所
- 神奈川県大和市南林間1丁目19-13
- 構造
- 鉄骨造 / 地上2階
- 規模
- 地上2階
- 主な用途
- -
- 竣工
- 1985年6月
- 契約形態
- -
- 入居可能日
- -
- 天井高
- 2.8m
- エレベータ
- -
- 駐車場
- 空有
- 基準階坪数
- -
その他条件
| 償却 | 20% |
|---|---|
| 更新料 | 新賃料1ヶ月 |
| その他の費用 |
物件情報
| 空室 | - |
|---|---|
| 物件名 | 甲子園1ビル |
| 住所 | 神奈川県大和市南林間1丁目19-13 |
| 構造 | 鉄骨造 / 地上2階 |
| 竣工 | 1985年6月 |
| 耐震基準 | - |
設備詳細
| 空調 | - |
|---|---|
| トイレ | - |
| 床仕様 | - |
| エレベータ | - |
| 駐車場設備 | 空有 |
| その他 | - |
最寄り駅
| 最寄り駅 | 南林間 徒歩4分 鶴間 徒歩8分 中央林間 徒歩18分 |
|---|
アクセスマップ
ストリートビュー
