現在この物件は埋まっています
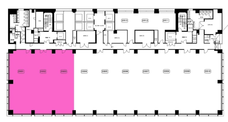
丸の内北口ビル 20階 128.37坪
賃貸情報
※当サイトの表記はすべて税抜きとなり、消費税が別途加算されます。
- 賃料
- 相談
- 面積
- 128.37坪 (424.35㎡)
- 共益/管理費
- 共益費相談
- 敷金/保証金
- 相談
- 更新料
- 無
- 礼金/償却
- 無 / 無
- 住所
- 東京都千代田区丸の内1丁目6-5
- 構造
- SRC / 地上29階・地下4階
- 規模
- -地上29階 ・ 地下4階
- 主な用途
- -
- 竣工
- 2004年8月
- 契約形態
- -
- 入居可能日
- 即時
- 天井高
- エレベータ
- 18基
- 駐車場
- 空有
- 基準階坪数
- -
その他条件
| 償却 | 無 |
|---|---|
| 更新料 | 無 |
| その他の費用 |
物件情報
| 空室 | あり |
|---|---|
| 物件名 | 丸の内北口ビル |
| 住所 | 東京都千代田区丸の内1丁目6-5 |
| 構造 | SRC / 地上29階・地下4階 |
| 竣工 | 2004年8月 |
| 耐震基準 | 耐震基準クリア |
| 基準階坪数 | 430坪 |
設備詳細
| 空調 | セントラル空調 |
|---|---|
| トイレ | - |
| 床仕様 | OA有(フリーアクセスフロア) |
| エレベータ | 18 基 |
| 駐車場設備 | 空有 |
| その他 | クリニック全般 / 新耐震 / 光ファイバー / 高層ビル / 24時間利用可 / 大型ビル |
最寄り駅
| 最寄り駅 | 東京 徒歩5分 大手町 徒歩5分 大手町 徒歩1分 |
|---|
アクセスマップ
ストリートビュー

























































