現在この物件は埋まっています
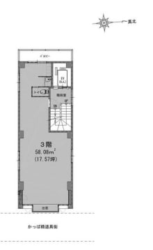
合羽橋METS八番館ビル 3階 17.57坪
図面
賃貸情報
※当サイトの表記はすべて税抜きとなり、消費税が別途加算されます。
- 賃料
- 相談
- 面積
- 17.57坪 (58.08㎡)
- 共益/管理費
- 管理費35,140 円
- 敷金/保証金
- 6ヶ月
- 更新料
- 新賃料1ヶ月
- 礼金/償却
- 1ヶ月 / 10%
- 住所
- 東京都台東区松が谷3丁目1-13
- 構造
- RC / 地上5階
- 規模
- 地上5階
- 主な用途
- -
- 竣工
- 1989年4月
- 契約形態
- -
- 入居可能日
- 即時
- 天井高
- 3.5m
- エレベータ
- 1基
- 駐車場
- -
- 基準階坪数
- -
その他条件
| 償却 | 10% |
|---|---|
| 更新料 | 新賃料1ヶ月 |
| その他の費用 |
物件情報
| 空室 | - |
|---|---|
| 物件名 | 合羽橋METS八番館ビル |
| 住所 | 東京都台東区松が谷3丁目1-13 |
| 構造 | RC / 地上5階 |
| 竣工 | 1989年4月 |
| 耐震基準 | 耐震基準クリア |
設備詳細
| 空調 | - |
|---|---|
| トイレ | - |
| 床仕様 | - |
| エレベータ | 1 基 |
| 駐車場設備 | - |
| その他 | 新耐震 / 24時間利用可 |
最寄り駅
| 最寄り駅 | 浅草 徒歩6分 田原町 徒歩8分 稲荷町 徒歩9分 |
|---|
アクセスマップ
ストリートビュー











































