現在この物件は埋まっています
アートハウスMIYOSIビル 1-2階 19.66坪
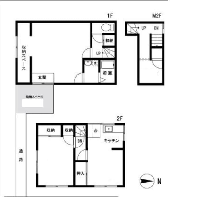
図面
賃貸情報
※当サイトの表記はすべて税抜きとなり、消費税が別途加算されます。
- 賃料
- 相談
- 面積
- 19.66坪 (65㎡)
- 共益/管理費
- 共益費無
- 敷金/保証金
- 2ヶ月
- 更新料
- 新賃料1ヶ月
- 礼金/償却
- 1ヶ月 / 無
- 住所
- 東京都江東区三好3丁目3
- 構造
- 木造 / 地上2階
- 規模
- 地上2階
- 主な用途
- -
- 竣工
- 1974年1月
- 契約形態
- -
- 入居可能日
- 即時
- 天井高
- 2.5m
- エレベータ
- -
- 駐車場
- -
- 基準階坪数
- -
その他条件
| 償却 | 無 |
|---|---|
| 更新料 | 新賃料1ヶ月 |
| その他の費用 |
物件情報
| 空室 | - |
|---|---|
| 物件名 | アートハウスMIYOSIビル |
| 住所 | 東京都江東区三好3丁目3 |
| 構造 | 木造 / 地上2階 |
| 竣工 | 1974年1月 |
| 耐震基準 | - |
設備詳細
| 空調 | - |
|---|---|
| トイレ | - |
| 床仕様 | - |
| エレベータ | - |
| 駐車場設備 | - |
| その他 | 一棟貸し |
最寄り駅
| 最寄り駅 | 清澄白河 徒歩8分 清澄白河 徒歩10分 菊川 徒歩12分 |
|---|
アクセスマップ
ストリートビュー




















