現在この物件は埋まっています
萬寿穂ビル宝寿 3階 54.05坪
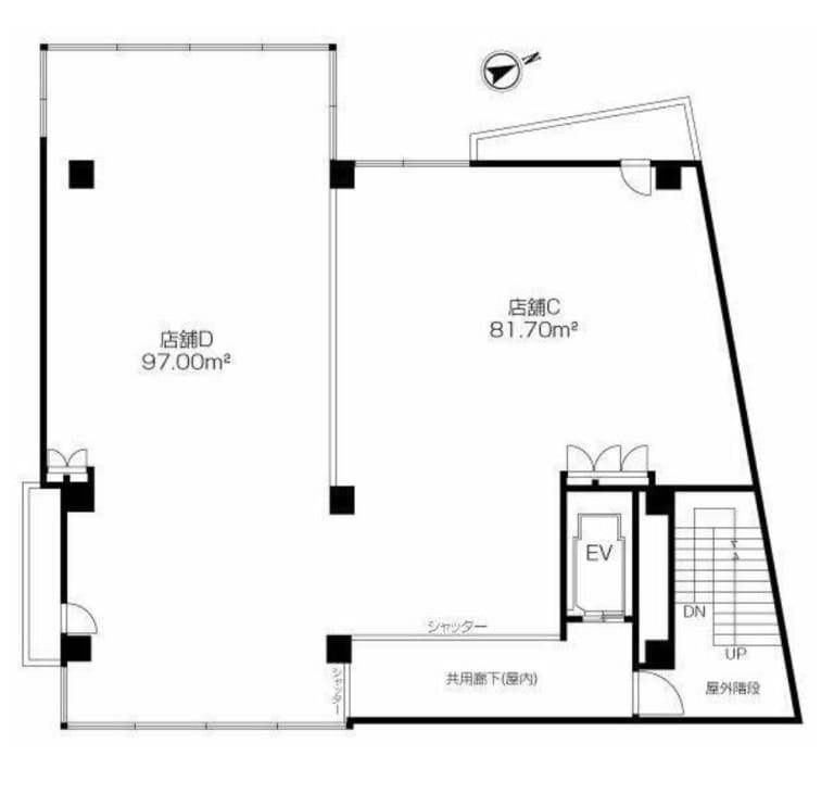
図面1
賃貸情報
※当サイトの表記はすべて税抜きとなり、消費税が別途加算されます。
- 賃料
- 相談
- 面積
- 54.05坪 (178.7㎡)
- 共益/管理費
- 管理費84,800 円
- 敷金/保証金
- 6ヶ月
- 更新料
- 新賃料1ヶ月
- 礼金/償却
- 1ヶ月 / 10%
- 住所
- 神奈川県横浜市 金沢区瀬戸15‐10
- 構造
- 鉄骨造 / 地上5階
- 規模
- -地上5階
- 主な用途
- -
- 竣工
- 2018年11月
- 契約形態
- -
- 入居可能日
- -
- 天井高
- エレベータ
- 1基
- 駐車場
- -
- 基準階坪数
- -
その他条件
| 償却 | 10% |
|---|---|
| 更新料 | 新賃料1ヶ月 |
| 商店街費 | 3,500円 |
物件情報
| 空室 | - |
|---|---|
| 物件名 | 萬寿穂ビル宝寿 |
| 住所 | 神奈川県横浜市 金沢区瀬戸15‐10 |
| 構造 | 鉄骨造 / 地上5階 |
| 竣工 | 2018年11月 |
| 耐震基準 | - |
設備詳細
| 空調 | - |
|---|---|
| トイレ | - |
| 床仕様 | - |
| エレベータ | 1 基 |
| 駐車場設備 | - |
| その他 | - |
最寄り駅
| 最寄り駅 | 金沢八景 徒歩2分 金沢八景 徒歩3分 金沢八景 徒歩4分 |
|---|
アクセスマップ
ストリートビュー
