現在この物件は埋まっています
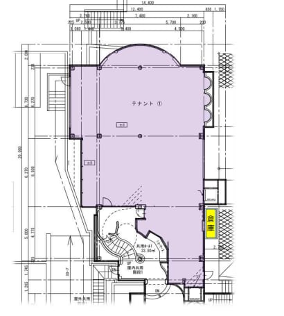
laflore八王子ビル 1階 60.13坪
賃貸情報
※当サイトの表記はすべて税抜きとなり、消費税が別途加算されます。
- 賃料
- 相談
- 面積
- 60.13坪 (198.77㎡)
- 共益/管理費
- 共益費120,260 円
- 敷金/保証金
- 相談
- 更新料
- 無
- 礼金/償却
- 無 / 無
- 住所
- 東京都八王子市大谷町59-1
- 構造
- 地上2階・地下1階
- 規模
- -地上2階 ・ 地下1階
- 主な用途
- -
- 竣工
- 1984月
- 契約形態
- -
- 入居可能日
- 即時
- 天井高
- エレベータ
- 駐車場
- -
- 基準階坪数
- -
その他条件
| 償却 | 無 |
|---|---|
| 更新料 | 無 |
| 倉庫 | 9,200円 |
物件情報
| 空室 | - |
|---|---|
| 物件名 | laflore八王子ビル |
| 住所 | 東京都八王子市大谷町59-1 |
| 構造 | 地上2階・地下1階 |
| 竣工 | 1984月 |
| 耐震基準 | - |
設備詳細
| 空調 | - |
|---|---|
| トイレ | - |
| 床仕様 | - |
| エレベータ | - |
| 駐車場設備 | - |
| その他 | 機械警備 / 平置き駐車場 / 機械式駐車場 |
最寄り駅
| 最寄り駅 | 北八王子 徒歩12分 八王子 徒歩26分 京王八王子 徒歩20分 |
|---|
アクセスマップ
ストリートビュー






