現在この物件は埋まっています
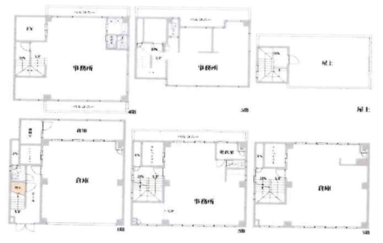
ロータスビル清澄白河 1-5階 99.5坪
賃貸情報
※当サイトの表記はすべて税抜きとなり、消費税が別途加算されます。
- 賃料
- 相談
- 面積
- 99.5坪 (328.93㎡)
- 共益/管理費
- 共益費賃料込
- 敷金/保証金
- 5ヶ月
- 更新料
- 新賃料1ヶ月
- 礼金/償却
- 1ヶ月 / 1ヶ月
- 住所
- 東京都江東区高橋7-13
- 構造
- RC / 地上5階
- 規模
- 地上5階
- 主な用途
- -
- 竣工
- 1985年3月
- 契約形態
- -
- 入居可能日
- -
- 天井高
- エレベータ
- 1基
- 駐車場
- -
- 基準階坪数
- -
その他条件
| 償却 | 1ヶ月 |
|---|---|
| 更新料 | 新賃料1ヶ月 |
| その他の費用 |
物件情報
| 空室 | あり |
|---|---|
| 物件名 | ロータスビル清澄白河 |
| 住所 | 東京都江東区高橋7-13 |
| 構造 | RC / 地上5階 |
| 竣工 | 1985年3月 |
| 耐震基準 | 耐震基準クリア |
設備詳細
| 空調 | - |
|---|---|
| トイレ | - |
| 床仕様 | - |
| エレベータ | 1 基 |
| 駐車場設備 | - |
| その他 | 新耐震 |
最寄り駅
| 最寄り駅 | 清澄白河 徒歩5分 森下 徒歩5分 菊川 徒歩8分 |
|---|
アクセスマップ
ストリートビュー


































