現在この物件は埋まっています
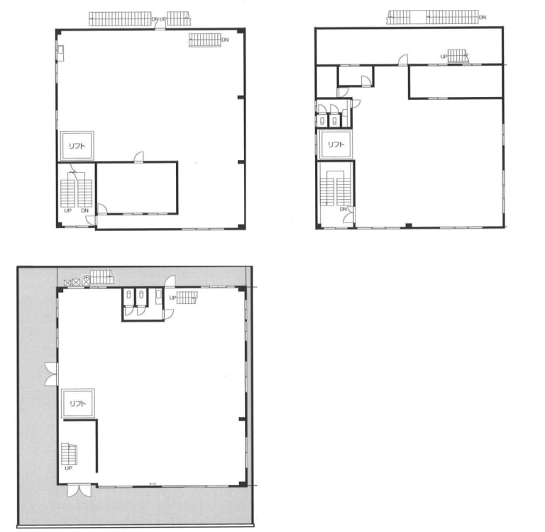
板橋区本町工場・倉庫ビル 1-3階 193.43坪
賃貸情報
※当サイトの表記はすべて税抜きとなり、消費税が別途加算されます。
- 賃料
- 相談
- 面積
- 193.43坪 (639.43㎡)
- 共益/管理費
- 共益費無
- 敷金/保証金
- 4ヶ月
- 更新料
- 無
- 礼金/償却
- 1ヶ月 / 無
- 住所
- 東京都板橋区本町34-6
- 構造
- 鉄骨造 / 地上3階
- 規模
- 地上3階
- 主な用途
- -
- 竣工
- 契約形態
- -
- 入居可能日
- -
- 天井高
- エレベータ
- -
- 駐車場
- -
- 基準階坪数
- -
その他条件
| 償却 | 無 |
|---|---|
| 更新料 | 無 |
| その他の費用 |
物件情報
| 空室 | - |
|---|---|
| 物件名 | 板橋区本町工場・倉庫ビル |
| 住所 | 東京都板橋区本町34-6 |
| 構造 | 鉄骨造 / 地上3階 |
| 耐震基準 | - |
設備詳細
| 空調 | - |
|---|---|
| トイレ | - |
| 床仕様 | - |
| エレベータ | - |
| 駐車場設備 | - |
| その他 | - |
最寄り駅
| 最寄り駅 | 板橋本町 徒歩2分 板橋区役所前 徒歩12分 本蓮沼 徒歩13分 |
|---|
アクセスマップ
ストリートビュー


