現在この物件は埋まっています
ディール武蔵小杉ビル 4階 118.43坪
賃貸情報
※当サイトの表記はすべて税抜きとなり、消費税が別途加算されます。
- 賃料
- 相談
- 面積
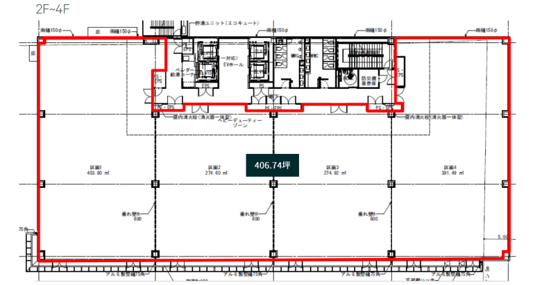
- 118.43坪 (391.5㎡)
- 共益/管理費
- 共益費183,135 円
- 敷金/保証金
- 8ヶ月
- 更新料
- 無
- 礼金/償却
- 無 / 無
- 住所
- 神奈川県川崎市 中原区中丸子35-9
- 構造
- 鉄骨造 / 地上4階
- 規模
- 地上4階
- 主な用途
- -
- 竣工
- 2023年12月
- 契約形態
- -
- 入居可能日
- 即時
- 天井高
- 2.8m
- エレベータ
- 4基
- 駐車場
- -
- 基準階坪数
- -
その他条件
| 償却 | 無 |
|---|---|
| 更新料 | 無 |
| その他の費用 |
物件情報
| 空室 | あり |
|---|---|
| 物件名 | ディール武蔵小杉ビル |
| 住所 | 神奈川県川崎市 中原区中丸子35-9 |
| 構造 | 鉄骨造 / 地上4階 |
| 竣工 | 2023年12月 |
| 耐震基準 | 耐震基準クリア |
| 基準階坪数 | 406.74坪 |
設備詳細
| 空調 | - |
|---|---|
| トイレ | - |
| 床仕様 | - |
| エレベータ | 4 基 |
| 駐車場設備 | - |
| その他 | 新耐震 |
最寄り駅
| 最寄り駅 | 武蔵中原 徒歩8分 武蔵小杉 徒歩3分 向河原 徒歩4分 |
|---|
アクセスマップ
ストリートビュー

