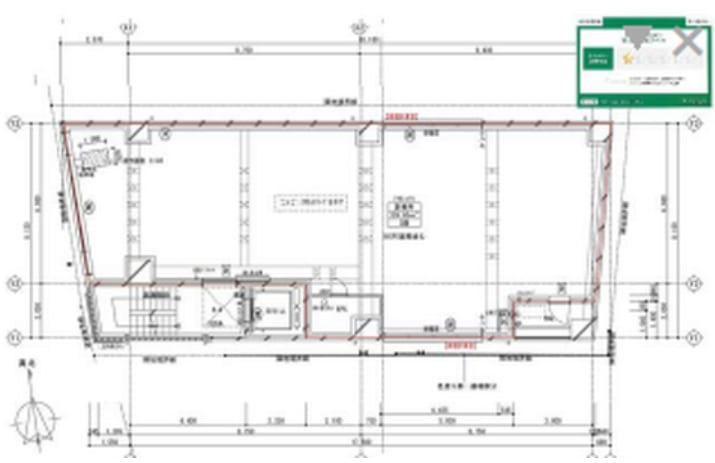
仮)杉並区阿佐谷北四丁目計画ビル 4階 42.24坪
賃貸情報
※当サイトの表記はすべて税抜きとなり、消費税が別途加算されます。
- 賃料
- 500,000 円
(坪:11,837 円)
- 面積
- 42.24坪 (139.65㎡)
- 共益/管理費
- 共益費賃料込
- 敷金/保証金
- 8ヶ月
- 更新料
- 無
- 礼金/償却
- 1ヶ月 / 無
- 住所
- 東京都杉並区阿佐谷北4丁目24-5
- 構造
- RC / 地上4階
- 規模
- 地上4階
- 主な用途
- -
- 竣工
- 2026年4月
- 契約形態
- -
- 入居可能日
- 予定 2026年 5月 下旬
- 天井高
- エレベータ
- 1基
- 駐車場
- -
- 基準階坪数
- -
その他条件
| 償却 | 無 |
|---|---|
| 更新料 | 無 |
| その他の費用 |
物件情報
| 空室 | あり |
|---|---|
| 物件名 | 仮)杉並区阿佐谷北四丁目計画ビル |
| 住所 | 東京都杉並区阿佐谷北4丁目24-5 |
| 構造 | RC / 地上4階 |
| 竣工 | 2026年4月 |
| 耐震基準 | - |
設備詳細
| 空調 | - |
|---|---|
| トイレ | - |
| 床仕様 | - |
| エレベータ | 1 基 |
| 駐車場設備 | - |
| その他 | - |
最寄り駅
| 最寄り駅 | 阿佐ケ谷 徒歩14分 阿佐ヶ谷 徒歩13分 鷺ノ宮 徒歩16分 |
|---|
アクセスマップ
ストリートビュー








