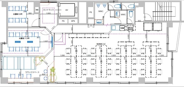
サンジュ共和十番館ビル 6階 48.76坪
賃貸情報
※当サイトの表記はすべて税抜きとなり、消費税が別途加算されます。
- 賃料
- 1,316,520 円
(坪:27,000 円)
- 面積
- 48.76坪 (161.22㎡)
- 共益/管理費
- 共益費賃料込
- 敷金/保証金
- 6ヶ月
- 更新料
- 無
- 礼金/償却
- 無 / 無
- 住所
- 東京都千代田区神田駿河台3丁目5-4
- 構造
- SRC / 地上8階
- 規模
- -地上8階
- 主な用途
- -
- 竣工
- 1986年2月
- 契約形態
- -
- 入居可能日
- 即時
- 天井高
- エレベータ
- 1基
- 駐車場
- -
- 基準階坪数
- -
その他条件
| 償却 | 無 |
|---|---|
| 更新料 | 無 |
| その他の費用 |
物件情報
| 空室 | あり |
|---|---|
| 物件名 | サンジュ共和十番館ビル |
| 住所 | 東京都千代田区神田駿河台3丁目5-4 |
| 構造 | SRC / 地上8階 |
| 竣工 | 1986年2月 |
| 耐震基準 | 耐震基準クリア |
| 基準階坪数 | 66坪 |
設備詳細
| 空調 | - |
|---|---|
| トイレ | - |
| 床仕様 | - |
| エレベータ | 1 基 |
| 駐車場設備 | - |
| その他 | 新耐震 / 光ファイバー / 機械警備 / 24時間利用可 |
最寄り駅
| 最寄り駅 | 御茶ノ水 徒歩3分 小川町 徒歩3分 新御茶ノ水 徒歩3分 |
|---|
アクセスマップ
ストリートビュー



















































































