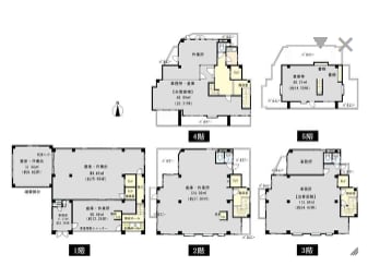
ATビル 1-5階 190.56坪
賃貸情報
※当サイトの表記はすべて税抜きとなり、消費税が別途加算されます。
- 賃料
- 1,850,000 円
(坪:9,708 円)
- 面積
- 190.56坪 (629.97㎡)
- 共益/管理費
- 共益費無
- 敷金/保証金
- 2ヶ月
- 更新料
- 新賃料1ヶ月
- 礼金/償却
- 2ヶ月 / 1ヶ月
- 住所
- 東京都荒川区東日暮里3丁目23-8
- 構造
- 鉄骨造 / 地上5階
- 規模
- 地上5階
- 主な用途
- -
- 竣工
- 1987年1月
- 契約形態
- -
- 入居可能日
- 即時
- 天井高
- エレベータ
- 1基
- 駐車場
- 空有
- 基準階坪数
- -
その他条件
| 償却 | 1ヶ月 |
|---|---|
| 更新料 | 新賃料1ヶ月 |
| その他の費用 |
物件情報
| 空室 | あり |
|---|---|
| 物件名 | ATビル |
| 住所 | 東京都荒川区東日暮里3丁目23-8 |
| 構造 | 鉄骨造 / 地上5階 |
| 竣工 | 1987年1月 |
| 耐震基準 | - |
設備詳細
| 空調 | - |
|---|---|
| トイレ | - |
| 床仕様 | - |
| エレベータ | 1 基 |
| 駐車場設備 | 空有 |
| その他 | - |
最寄り駅
| 最寄り駅 | 三河島 徒歩8分 荒川区役所前 徒歩10分 日暮里 徒歩14分 |
|---|
アクセスマップ
ストリートビュー

