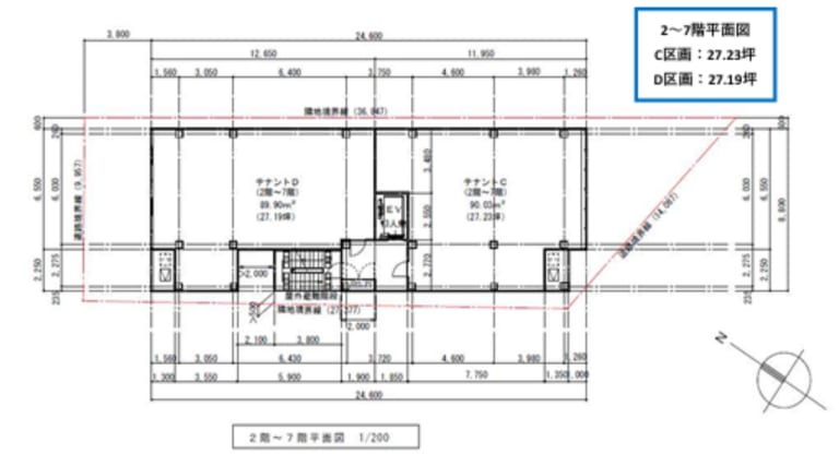
溝の口医療モールビル 3階 27.19坪
賃貸情報
※当サイトの表記はすべて税抜きとなり、消費税が別途加算されます。
- 賃料
- 相談
- 面積
- 27.19坪 (89.88㎡)
- 共益/管理費
- 共益費相談
- 敷金/保証金
- 相談
- 更新料
- 無
- 礼金/償却
- 無 / 無
- 住所
- 神奈川県川崎市 高津区溝口2丁目13-5
- 構造
- 地上7階
- 規模
- 地上7階
- 主な用途
- -
- 竣工
- 2027月
- 契約形態
- -
- 入居可能日
- -
- 天井高
- エレベータ
- 1基
- 駐車場
- -
- 基準階坪数
- -
その他条件
| 償却 | 無 |
|---|---|
| 更新料 | 無 |
| その他の費用 |
物件情報
| 空室 | あり |
|---|---|
| 物件名 | 溝の口医療モールビル |
| 住所 | 神奈川県川崎市 高津区溝口2丁目13-5 |
| 構造 | 地上7階 |
| 竣工 | 2027月 |
| 耐震基準 | - |
設備詳細
| 空調 | - |
|---|---|
| トイレ | - |
| 床仕様 | - |
| エレベータ | 1 基 |
| 駐車場設備 | - |
| その他 | - |
最寄り駅
| 最寄り駅 | 武蔵溝ノ口 徒歩5分 溝の口 徒歩5分 高津 徒歩6分 |
|---|
アクセスマップ
ストリートビュー







